Проект двухэтажного дома Деревянный дом Дьяконово2
Площадь
160 м 2
Размер дома:
95x138
Этажей:
2
Спален:
0
Санузел:
0
Гараж:
Нет
Баня:
Нет
Терраса:
Нет
Панорамные окна:
Нет
Мастер-спальня:
Нет
О проекте
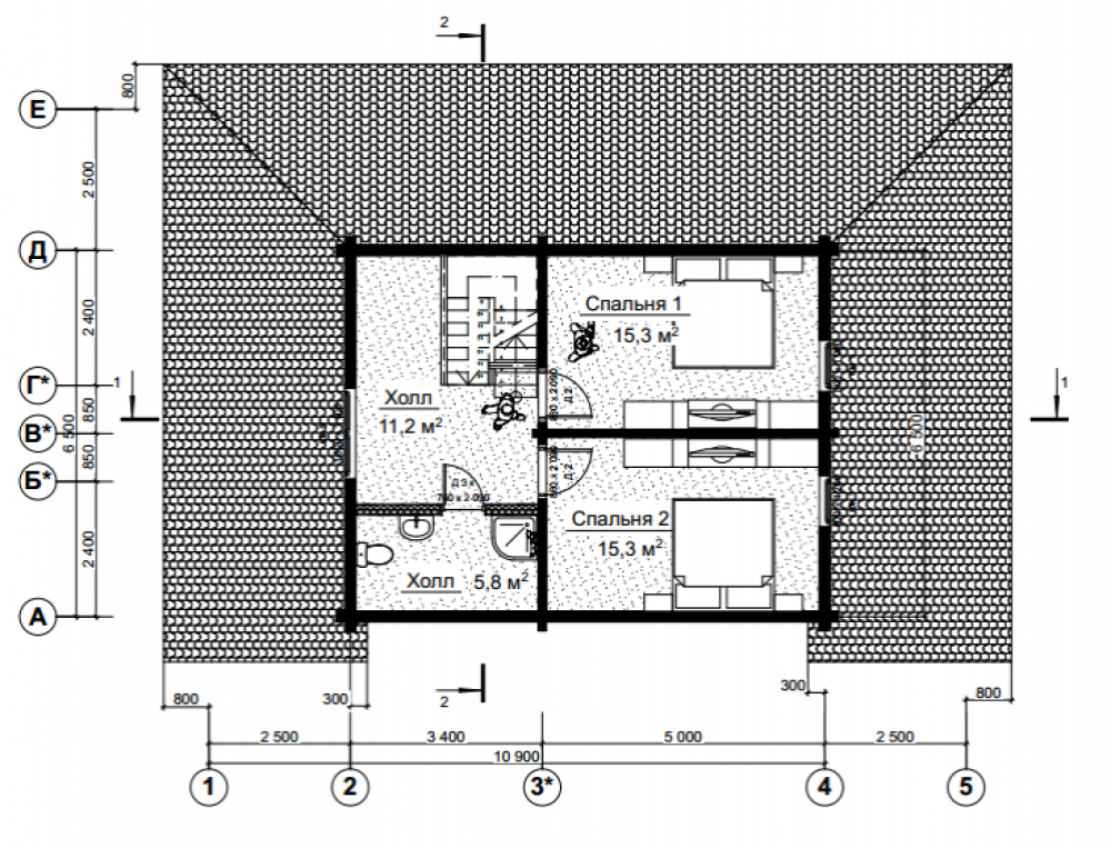
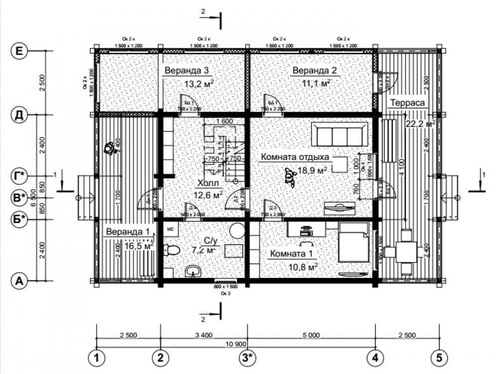
Дом, в котором хочется остаться навсегда. Жить удобно на 160 м² — здесь всё на своих местах. Дом спроектирован в духе дома в классическом стиле. Конструкция из Брус обеспечивает прочность и долговечность. Двухэтажная грамотная планировка делает зонирование более логичным.Характеристики
- Общая площадь: 160 м2
- Количество этажей: 2
- Стиль, разновидность: Дома в ином стиле
- Тип кровли: Дома с иной крышей
- Отделка: Без отделки
- Размер: 95x138
Отправьте свои контакты и мы расчитаем вам смету
Скорее всего вам подойдут следующие проекты домов:
Дом подходит для:










