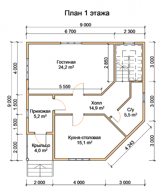
Проект двухэтажного дома Дом из бруса Емеля
Площадь
163 м 2
Размер дома:
10x11
Этажей:
2
Спален:
0
Санузел:
0
Гараж:
Нет
Баня:
Нет
Терраса:
Нет
Панорамные окна:
Нет
Мастер-спальня:
Нет
О проекте
Жильё, которое становится молчаливым, но понятливым собеседником. 163 м² — это возможность разделить пространство на зоны по интересам. В качестве кровли использована ондулин — материал, проверенный временем. Выбор Бруса обусловлен его теплоизоляционными свойствами. Архитектура выполнена в стиле дома в классическом стиле.Характеристики
- Общая площадь: 163 м2
- Количество этажей: 2
- Стиль, разновидность: Дома в ином стиле
- Тип кровли: Дома с двускатной крышей
- Отделка: Без отделки
- Размер: 10x11













