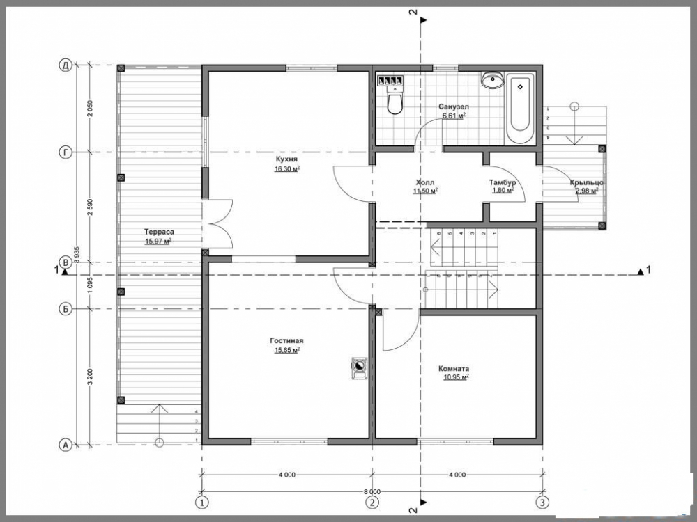
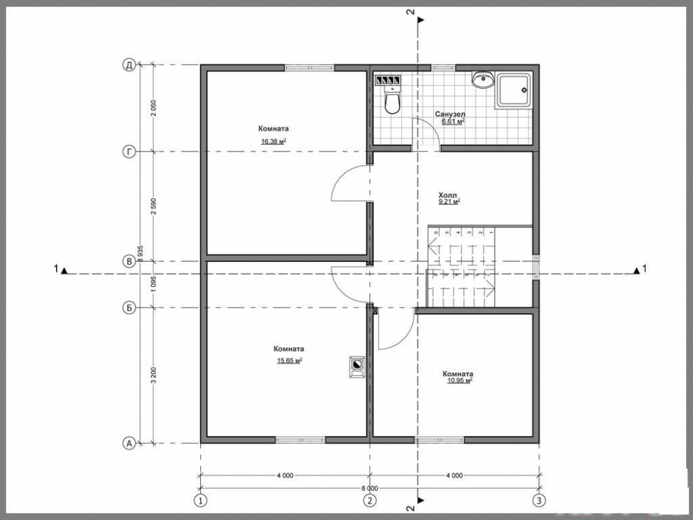
Проект двухэтажного дома Проект дома из бруса ПД-1
Площадь
144 м 2
Размер дома:
8x9
Этажей:
2
Спален:
4
Санузел:
0
Гараж:
Нет
Баня:
Нет
Терраса:
Нет
Панорамные окна:
Нет
Мастер-спальня:
Нет
О проекте
Проект, в котором ванная комната - это личный спа-салон. Площадь в 144 м² позволяет чувствовать себя свободно. Двухэтажная просторная планировка разграничивает спальные и дневные помещения. В качестве кровли использована рубероид — материал, проверенный временем. Наличие 4 спальни удовлетворит запросы семьи с детьми.Характеристики
- Общая площадь: 144 м2
- Количество этажей: 2
- Стиль, разновидность: Дома в ином стиле
- Тип кровли: Дома с двускатной крышей
- Отделка: Без отделки
- Размер: 8x9










