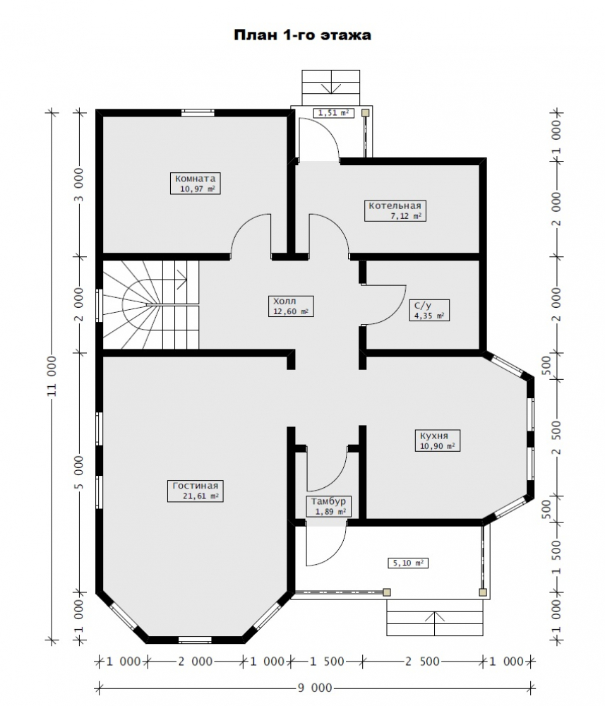
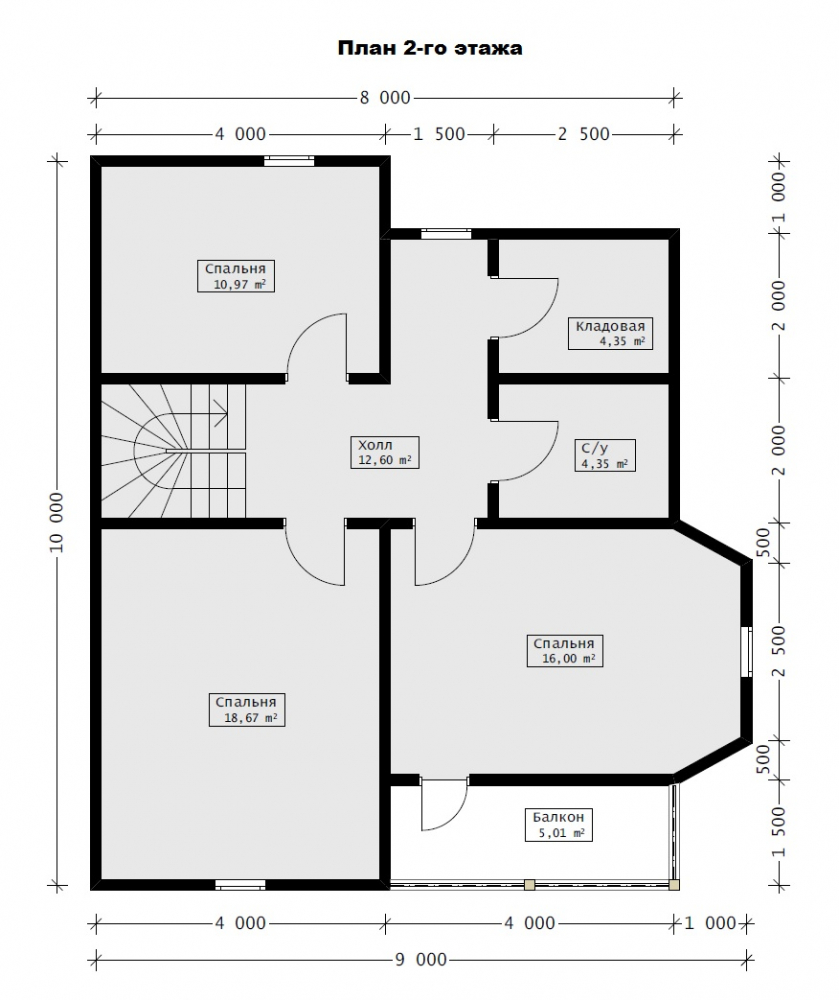
Проект двухэтажного дома ПРОЕКТ ДОМА ИЗ БРУСА 9 НА 11
Площадь
148 м 2
Размер дома:
9x11
Этажей:
2
Спален:
3
Санузел:
0
Гараж:
Нет
Баня:
Нет
Терраса:
Нет
Панорамные окна:
Нет
Мастер-спальня:
Нет
О проекте
Дом, вдохновлённый природой и наполненный светом. Грамотно использованные 148 м² обеспечивают функциональность. Двухэтажная современная планировка разграничивает спальные и дневные помещения. Количество спален — 3, делая планировку гибкой. Стены из Брус хорошо держат тепло и защищают от шума.Характеристики
- Общая площадь: 148 м2
- Количество этажей: 2
- Стиль, разновидность: Дома в стиле Русский
- Тип кровли: Дома с многощипцовой крышей
- Отделка: Без отделки
- Размер: 9x11










