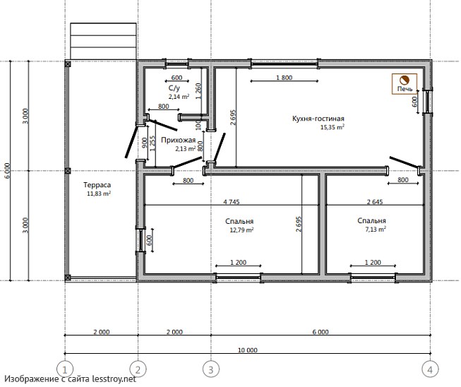
Проект одноэтажного дома дк096
Площадь
42 м 2
Размер дома:
6x8
Этажей:
1
Спален:
2
Санузел:
0
Гараж:
Нет
Баня:
Нет
Терраса:
Нет
Панорамные окна:
Нет
Мастер-спальня:
Нет
О проекте
Каркасный дом площадью 42 м² в стиле шале с двумя спальнями — это компактность и уют. Один этаж делает его удобным для жизни, а металлочерепица завершает образ.Характеристики
- Общая площадь: 42 м2
- Количество этажей: 1
- Стиль, разновидность: Дома в стиле Шале
- Форма: П-образные дома
- Тип кровли: Дома со сводчатой крышей
- Отделка: Без отделки
- Размер: 6x8
Отправьте свои контакты и мы расчитаем вам смету
Скорее всего вам подойдут следующие проекты домов:
Дом подходит для:
Дом подходит для:
Дом подходит для:














