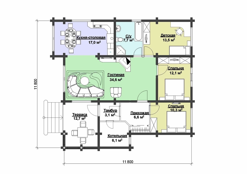
Проект одноэтажного дома Дом 144 кв.м.
Площадь
144 м 2
Размер дома:
11x12
Этажей:
1
Спален:
3
Санузел:
0
Гараж:
Нет
Баня:
Нет
Терраса:
Нет
Панорамные окна:
Нет
Мастер-спальня:
Нет
О проекте
Здесь каждая деталь создана с любовью. Жилая площадь составляет 144 м² — идеально для комфортной жизни. Наличие 3 спальни удовлетворит запросы семьи с детьми. Одноэтажная грамотная планировка делает зонирование более логичным. Выбор Бруса обусловлен его теплоизоляционными свойствами.Характеристики
- Общая площадь: 144 м2
- Количество этажей: 1
- Стиль, разновидность: Дома в стиле Модерн
- Форма: Прямоугольные дома
- Тип кровли: Дома с шатровой крышей
- Отделка: Без отделки
- Размер: 11x12
Отправьте свои контакты и мы расчитаем вам смету
Скорее всего вам подойдут следующие проекты домов:
Дом подходит для:
Дом подходит для:
Дом подходит для:












