Проект двухэтажного дома Дом id-102940
Дом подходит для:
Площадь
0 м 2
Размер дома:
10x14
Этажей:
2
Спален:
3
Санузел:
4
Гараж:
Нет
Баня:
Нет
Терраса:
Нет
Панорамные окна:
Нет
Мастер-спальня:
Нет
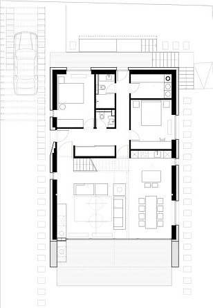
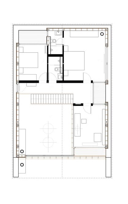
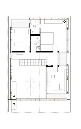
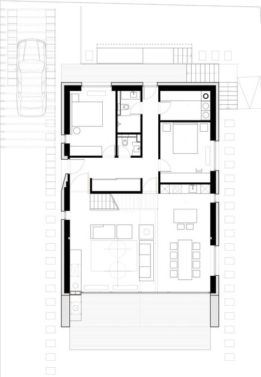
Планировка
О проекте
Двухэтажный дом с тремя комнатами и четырьмя санузлами подойдет для семьи, ценящей комфорт. В проекте нет гаража, что увеличивает жилое пространство. Просторные комнаты позволят создать уютную атмосферу для каждого члена семьи. Дом выполнен из современных материалов для надежности и теплаГарантии: 16 лет гарантии
Характеристики
- Количество этажей: 2
- Гараж: Без гаража
- Размер: 10x14
- Фундамент: Дома с ленточным фундаментом
Отправьте свои контакты и мы расчитаем вам смету
Скорее всего вам подойдут следующие проекты домов:
Проект двухэтажного дома Дом id-114292
Для большой семьи
Дом подходит для:
Дом подходит для:
Проект двухэтажного дома Дом id-110330
Для большой семьи
Дом подходит для:
Дом подходит для:
Проект двухэтажного дома Дом id-114330
Для большой семьи
Дом подходит для:
Дом подходит для:






















