Проект одноэтажного дома Дом id-115278
Дом подходит для:
Площадь
124 м 2
Размер дома:
14x9
Этажей:
1
Спален:
3
Санузел:
2
Гараж:
Нет
Баня:
Нет
Терраса:
Нет
Панорамные окна:
Нет
Мастер-спальня:
Нет
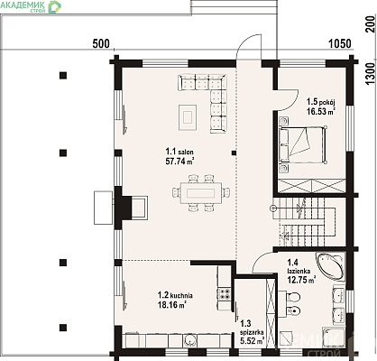
Планировка
Характеристики
- Общая площадь: 124 м2
- Жилая площадь: 98 м2
- Количество этажей: 1
- Гараж: Без гаража
- Площадь кровли: 175 м2
- Размер: 14x9
- Фундамент: Дома с ленточным фундаментом
Отправьте свои контакты и мы расчитаем вам смету
Скорее всего вам подойдут следующие проекты домов:
Проект одноэтажного дома Дом id-115224
Семья с одним ребенком
Дом подходит для:
Дом подходит для:
Проект одноэтажного дома Дом id-115261
Семья с двумя детьми
Дом подходит для:
Дом подходит для:
Проект одноэтажного дома Дом id-112368
Семья с одним ребенком
Дом подходит для:
Дом подходит для:

























