Проект двухэтажного дома Дом id-124476
Дом подходит для:
Площадь
246 м 2
Размер дома:
13x14
Этажей:
2
Спален:
5
Санузел:
2
Гараж:
Нет
Баня:
Нет
Терраса:
Нет
Панорамные окна:
Нет
Мастер-спальня:
Нет
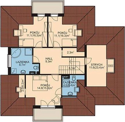
Планировка
Характеристики
- Общая площадь: 246 м2
- Жилая площадь: 165 м2
- Количество этажей: 2
- Гараж: На 2 машины
- Площадь кровли: 219 м2
- Размер: 13x14
- Фундамент: Дома с ленточным фундаментом
Отправьте свои контакты и мы расчитаем вам смету
Скорее всего вам подойдут следующие проекты домов:
Проект двухэтажного дома Дом id-114292
Для большой семьи
Дом подходит для:
Дом подходит для:
Проект двухэтажного дома Дом id-115390
Для большой семьи
Дом подходит для:
Дом подходит для:
Проект двухэтажного дома Дом id-110330
Для большой семьи
Дом подходит для:
Дом подходит для:






















