Проект двухэтажного дома Дом id-35225
Дом подходит для:
Площадь
303 м 2
Размер дома:
15x17
Этажей:
2
Спален:
4
Санузел:
3
Гараж:
Нет
Баня:
Нет
Терраса:
Нет
Панорамные окна:
Нет
Мастер-спальня:
Нет
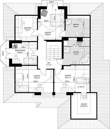
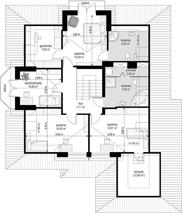
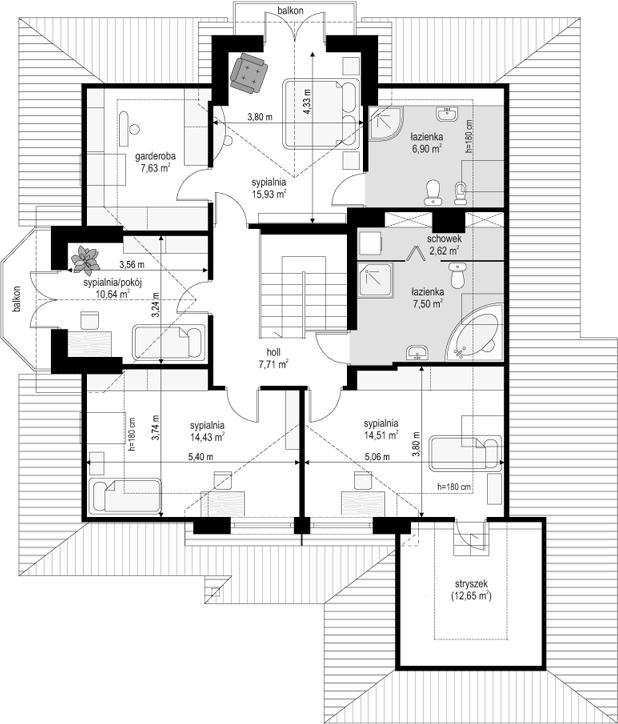
Планировка
Характеристики
- Общая площадь: 303 м2
- Жилая площадь: 201 м2
- Количество этажей: 2
- Гараж: На 2 машины
- Площадь кровли: 303 м2
- Размер: 15x17
- Фундамент: Дома с ленточным фундаментом
Отправьте свои контакты и мы расчитаем вам смету
Скорее всего вам подойдут следующие проекты домов:
Проект двухэтажного дома Дом id-115385
Для большой семьи
Дом подходит для:
Дом подходит для:
Проект двухэтажного дома Дом id-115538
Для большой семьи
Дом подходит для:
Дом подходит для:
Проект двухэтажного дома Дом id-115507
Для большой семьи
Дом подходит для:
Дом подходит для:

























