Проект одноэтажного дома Дом id-36270
Дом подходит для:
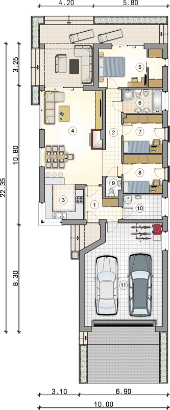
Площадь
197 м 2
Размер дома:
10x22
Этажей:
1
Спален:
3
Санузел:
2
Гараж:
Нет
Баня:
Нет
Терраса:
Нет
Панорамные окна:
Нет
Мастер-спальня:
Нет
Планировка
Характеристики
- Общая площадь: 197 м2
- Жилая площадь: 100 м2
- Количество этажей: 1
- Гараж: На 2 машины
- Площадь кровли: 244 м2
- Размер: 10x22
- Фундамент: Дома с ленточным фундаментом
Отправьте свои контакты и мы расчитаем вам смету
Скорее всего вам подойдут следующие проекты домов:
Проект одноэтажного дома Дом id-116839
Для большой семьи
Дом подходит для:
Дом подходит для:
Проект одноэтажного дома Дом id-115836
Семья с двумя детьми
Дом подходит для:
Дом подходит для:
Проект одноэтажного дома Дом id-119459
Для большой семьи
Дом подходит для:
Дом подходит для:

























