Проект двухэтажного дома Дом id-56406
Дом подходит для:
Площадь
129 м 2
Размер дома:
8x8
Этажей:
2
Спален:
2
Санузел:
2
Гараж:
Нет
Баня:
Нет
Терраса:
Нет
Панорамные окна:
Нет
Мастер-спальня:
Нет
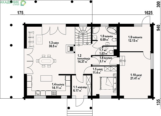
Планировка
Фасады
О проекте
Двухэтажный дом площадью 129 м² рассчитан на две комнаты и два санузла. В проекте отсутствует гараж, что делает дом более компактным и подходящим для небольших участков. Просторные помещения и современная планировка обеспечивают комфортное проживание для семьи.Гарантии: 16 лет гарантии
Характеристики
- Общая площадь: 129 м2
- Жилая площадь: 59 м2
- Количество этажей: 2
- Гараж: Без гаража
- Площадь кровли: 132,70 м2
- Размер: 8x8
- Фундамент: Дома с ленточным фундаментом
Отправьте свои контакты и мы расчитаем вам смету
Скорее всего вам подойдут следующие проекты домов:
Проект двухэтажного дома Дом id-122591
Семья с двумя детьми
Дом подходит для:
Дом подходит для:
Проект двухэтажного дома Дом id-85506
Для большой семьи
Дом подходит для:
Дом подходит для:
Проект двухэтажного дома Дом id-85816
Для большой семьи
Дом подходит для:
Дом подходит для:


















