Проект одноэтажного дома Дом id-60117
Дом подходит для:
Площадь
170 м 2
Размер дома:
12x18
Этажей:
1
Спален:
3
Санузел:
1
Гараж:
Нет
Баня:
Нет
Терраса:
Нет
Панорамные окна:
Нет
Мастер-спальня:
Нет
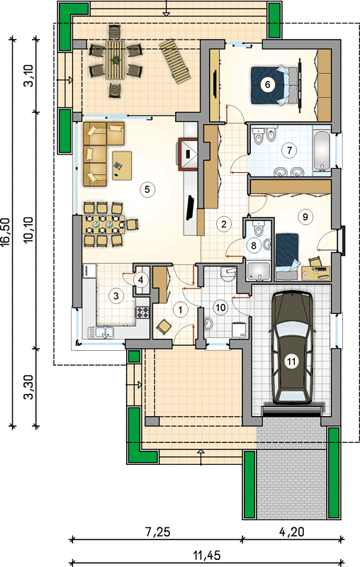
Планировка
Характеристики
- Общая площадь: 170 м2
- Жилая площадь: 100 м2
- Количество этажей: 1
- Гараж: На 1 машину
- Площадь кровли: 250,90 м2
- Размер: 12x18
- Фундамент: Дома с ленточным фундаментом
Отправьте свои контакты и мы расчитаем вам смету
Скорее всего вам подойдут следующие проекты домов:
Проект одноэтажного дома Гранд
Семья с одним ребенком
Дом подходит для:
Дом подходит для:
Проект одноэтажного дома Дом id-115836
Семья с двумя детьми
Дом подходит для:
Дом подходит для:
Проект одноэтажного дома Дом id-119459
Для большой семьи
Дом подходит для:
Дом подходит для:























