Проект одноэтажного дома Дом id-68109
Дом подходит для:
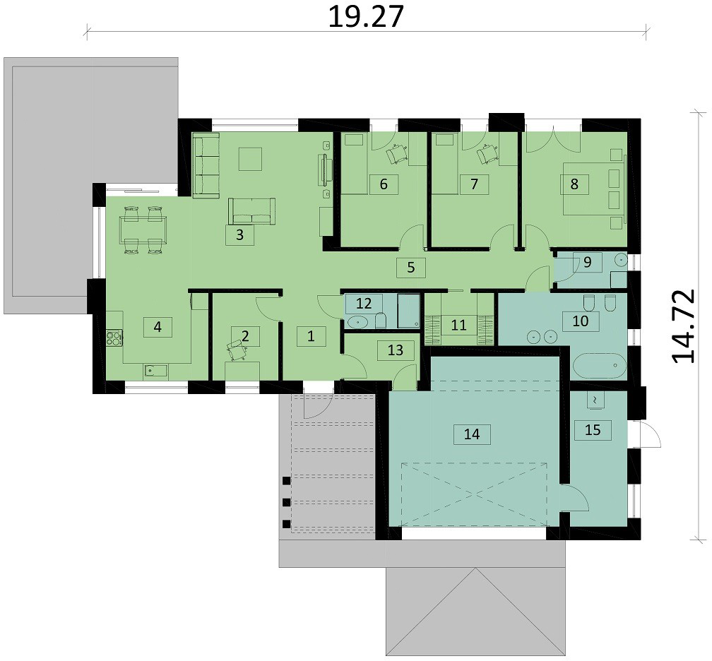
Площадь
177 м 2
Размер дома:
15x19
Этажей:
1
Спален:
4
Санузел:
2
Гараж:
Нет
Баня:
Нет
Терраса:
Нет
Панорамные окна:
Нет
Мастер-спальня:
Нет
Планировка
Характеристики
- Общая площадь: 177 м2
- Жилая площадь: 135 м2
- Количество этажей: 1
- Гараж: На 2 машины
- Площадь кровли: 262 м2
- Размер: 15x19
- Фундамент: Дома с ленточным фундаментом
Отправьте свои контакты и мы расчитаем вам смету
Скорее всего вам подойдут следующие проекты домов:
Проект одноэтажного дома Дом id-113757
Семья с двумя детьми
Дом подходит для:
Дом подходит для:
Проект одноэтажного дома Дом id-117996
Для большой семьи
Дом подходит для:
Дом подходит для:
Проект одноэтажного дома Дом id-124296
Для большой семьи
Дом подходит для:
Дом подходит для:






















