Проект одноэтажного дома Дом id-68624
Дом подходит для:
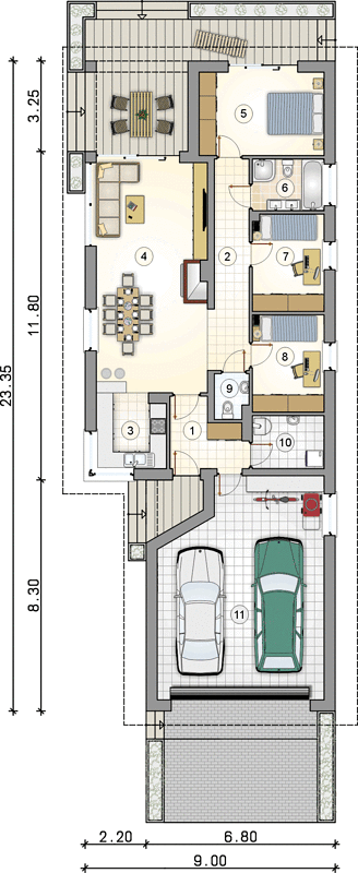
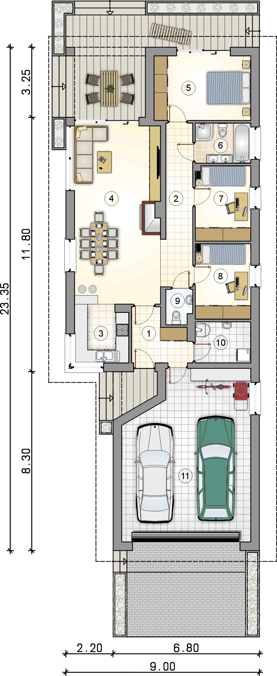
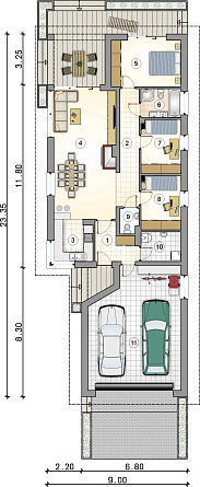
Площадь
191 м 2
Размер дома:
9x23
Этажей:
1
Спален:
3
Санузел:
2
Гараж:
Нет
Баня:
Нет
Терраса:
Нет
Панорамные окна:
Нет
Мастер-спальня:
Нет
Планировка
Характеристики
- Общая площадь: 191 м2
- Жилая площадь: 96 м2
- Количество этажей: 1
- Гараж: На 2 машины
- Площадь кровли: 280 м2
- Размер: 9x23
- Фундамент: Дома с ленточным фундаментом
Отправьте свои контакты и мы расчитаем вам смету
Скорее всего вам подойдут следующие проекты домов:
Проект одноэтажного дома Дом id-115836
Семья с двумя детьми
Дом подходит для:
Дом подходит для:
Проект одноэтажного дома Дом id-119459
Для большой семьи
Дом подходит для:
Дом подходит для:
Проект одноэтажного дома Дом id-114358
Семья с двумя детьми
Дом подходит для:
Дом подходит для:


























