Проект двухэтажного дома Дом id-73682
Дом подходит для:
Площадь
255 м 2
Размер дома:
18x17
Этажей:
2
Спален:
3
Санузел:
2
Гараж:
Нет
Баня:
Нет
Терраса:
Нет
Панорамные окна:
Нет
Мастер-спальня:
Нет
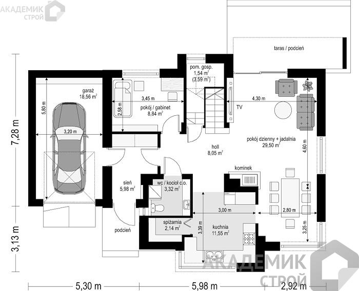
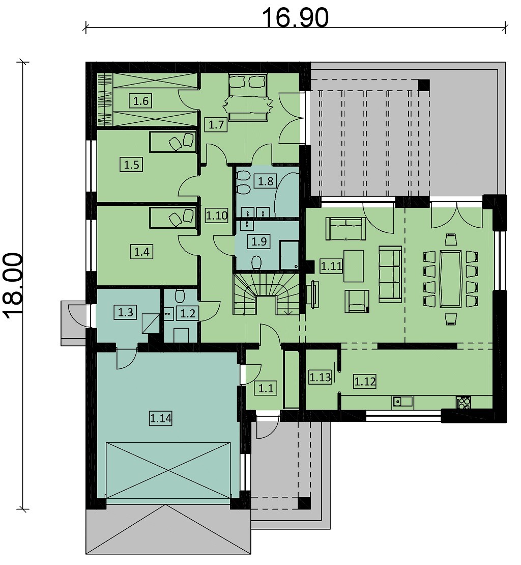
Планировка
Характеристики
- Общая площадь: 255 м2
- Жилая площадь: 152 м2
- Количество этажей: 2
- Гараж: На 2 машины
- Площадь кровли: 292,34 м2
- Размер: 18x17
- Фундамент: Дома с ленточным фундаментом
Отправьте свои контакты и мы расчитаем вам смету
Скорее всего вам подойдут следующие проекты домов:
Проект двухэтажного дома Дом id-115385
Для большой семьи
Дом подходит для:
Дом подходит для:
Проект двухэтажного дома Дом id-124280
Для большой семьи
Дом подходит для:
Дом подходит для:
Проект двухэтажного дома Дом id-115507
Для большой семьи
Дом подходит для:
Дом подходит для:

























