Проект двухэтажного дома Дом id-80825
Дом подходит для:
Площадь
246 м 2
Размер дома:
11x23
Этажей:
2
Спален:
3
Санузел:
2
Гараж:
Нет
Баня:
Нет
Терраса:
Нет
Панорамные окна:
Нет
Мастер-спальня:
Нет
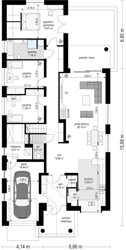
Планировка
Фасады
О проекте
Здесь каждая комната — пример идеального баланса формы и содержания. Дом даёт 246 м² для отдыха, творчества и общения. Доступные 132 м² с разумным подходом к каждой зоне. 2 санузла делают дом по-настоящему комфортным. Количество спален — 3, делая планировку гибкой. Фундамент обеспечивает надежность и долговечность конструкции. Материал кровли — металлочерепица, что добавляет зданию индивидуальность.Гарантии: 16 лет гарантии
Характеристики
- Общая площадь: 246 м2
- Жилая площадь: 132 м2
- Количество этажей: 2
- Гараж: На 1 машину
- Площадь кровли: 298,30 м2
- Размер: 11x23
- Фундамент: Дома с ленточным фундаментом
Отправьте свои контакты и мы расчитаем вам смету
Скорее всего вам подойдут следующие проекты домов:
Проект двухэтажного дома Дом id-113393
Семья с двумя детьми
Дом подходит для:
Дом подходит для:
Проект двухэтажного дома Дом id-115385
Для большой семьи
Дом подходит для:
Дом подходит для:
Проект двухэтажного дома Дом id-124607
Для большой семьи
Дом подходит для:
Дом подходит для:





















