Проект двухэтажного дома Дом id-85887
Дом подходит для:
Площадь
353 м 2
Размер дома:
18x13
Этажей:
2
Спален:
4
Санузел:
3
Гараж:
Нет
Баня:
Нет
Терраса:
Нет
Панорамные окна:
Нет
Мастер-спальня:
Нет
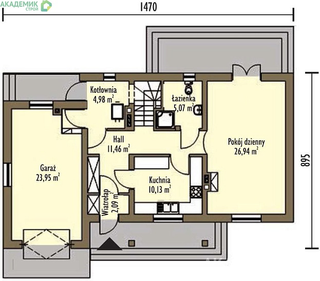
Планировка
Фасады
О проекте
Двухэтажный дом площадью 183 м² включает четыре комнаты и три санузла, что удобно для семьи из 4-5 человек. Гараж на две машины добавляет практичности для автомобилистов. Просторная гостиная и кухня создают уютную атмосферу для всей семьи. Дом выполнен из газобетона и металлочерепицы, что обеспечивает энергоэффективность.Гарантии: 16 лет гарантии
Характеристики
- Общая площадь: 353 м2
- Жилая площадь: 183 м2
- Количество этажей: 2
- Гараж: На 2 машины
- Площадь кровли: 265,28 м2
- Размер: 18x13
- Фундамент: Дома с ленточным фундаментом
Отправьте свои контакты и мы расчитаем вам смету
Скорее всего вам подойдут следующие проекты домов:
Проект двухэтажного дома Дом id-112321
Для большой семьи
Дом подходит для:
Дом подходит для:
Проект двухэтажного дома Дом id-115385
Для большой семьи
Дом подходит для:
Дом подходит для:
Проект двухэтажного дома Дом id-117188
Для большой семьи
Дом подходит для:
Дом подходит для:























