Проект двухэтажного дома Дом id-88878
Дом подходит для:
Площадь
166 м 2
Размер дома:
19x9
Этажей:
2
Спален:
4
Санузел:
3
Гараж:
Нет
Баня:
Нет
Терраса:
Нет
Панорамные окна:
Нет
Мастер-спальня:
Нет
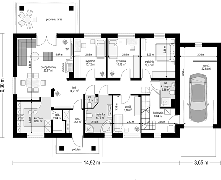
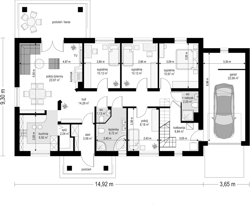
Планировка
Характеристики
- Общая площадь: 166 м2
- Жилая площадь: 102 м2
- Количество этажей: 2
- Гараж: На 1 машину
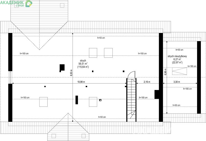
- Площадь кровли: 275,36 м2
- Размер: 19x9
- Фундамент: Дома с ленточным фундаментом
Отправьте свои контакты и мы расчитаем вам смету
Скорее всего вам подойдут следующие проекты домов:
Проект двухэтажного дома Дабл
Семья с двумя детьми
Дом подходит для:
Дом подходит для:
Проект двухэтажного дома Дом id-113739
Для большой семьи
Дом подходит для:
Дом подходит для:
Проект двухэтажного дома Дом id-124152
Семья с двумя детьми
Дом подходит для:
Дом подходит для:





















