Ваш город:

Проект двухэтажного дома Дом id-93656

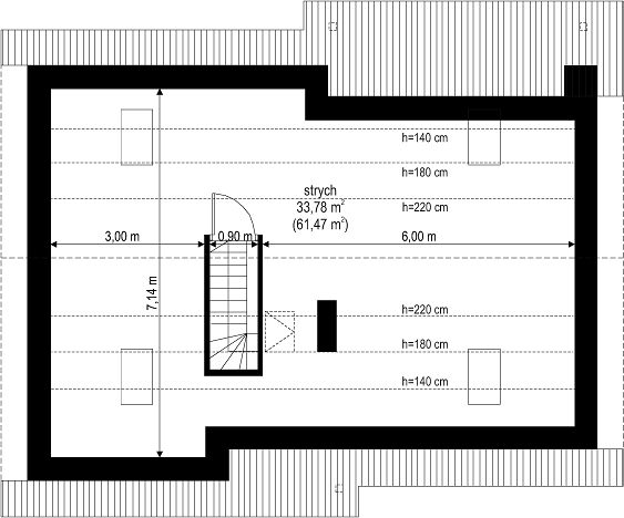
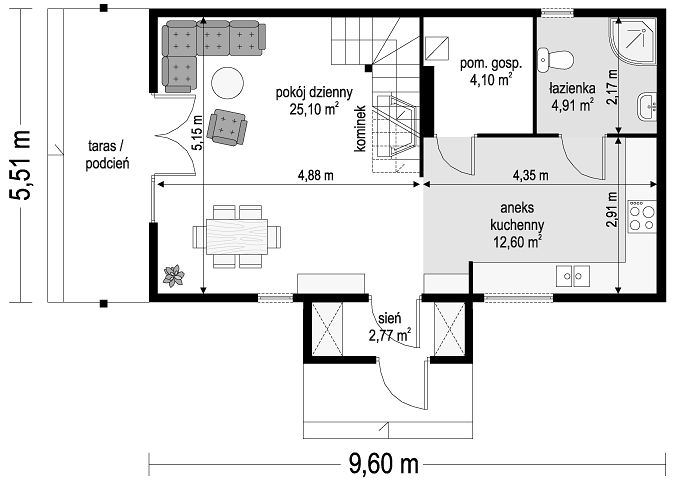
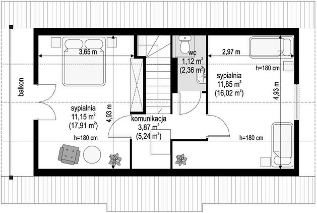
Площадь: 72 м2
Размер: 8x9
Дом подходит для:
Семья с одним ребенком
Этажей:
2
Стены:
Кровля:
Металлочерепица
Цена:
Оставить заявку
Площадь
72 м 2
Размер дома:
8x9
Этажей:
2
Спален:
1
Санузел:
1
Гараж:
Нет
Баня:
Нет
Терраса:
Нет
Панорамные окна:
Нет
Мастер-спальня:
Нет
Фасады
О проекте
Небольшой двухэтажный дом из газобетона площадью 72 м² с одной спальней и одним санузлом идеален для одного

Гарантии: 16 лет гарантии

Характеристики
  • Общая площадь: 72 м2
  • Жилая площадь: 48 м2
  • Количество этажей: 2
  • Гараж: Без гаража
  • Размер: 8x9
  • Фундамент: Дома с ленточным фундаментом
Отправьте свои контакты и мы расчитаем вам смету
Прикрепить документ
Скорее всего вам подойдут следующие проекты домов:
Добавить к сравнению
Добавить в избранное
Изображение
Изображение
Изображение
Изображение
Изображение
Изображение
Изображение
Изображение
Проект двухэтажного дома Дом id-125009
Площадь: 82 м2
Размер: 10x7
Дом подходит для:
Семья с одним ребенком
Дом подходит для:
Семья с одним ребенком
Добавить к сравнению
Добавить в избранное
Изображение
Изображение
Изображение
Изображение
Изображение
Изображение
Изображение
Изображение
Проект двухэтажного дома Дом id-89490
Площадь: 80 м2
Размер: 11x8
Дом подходит для:
Семья с одним ребенком
Дом подходит для:
Семья с одним ребенком
Добавить к сравнению
Добавить в избранное
Изображение
Изображение
Изображение
Изображение
Изображение
Изображение
Изображение
Изображение
Изображение
Проект двухэтажного дома Дом id-47123
Площадь: 83 м2
Размер: 11x8
Дом подходит для:
Семья с одним ребенком
Дом подходит для:
Семья с одним ребенком