Проект двухэтажного дома Дом id-98752
Дом подходит для:
Площадь
245 м 2
Размер дома:
16x10
Этажей:
2
Спален:
5
Санузел:
2
Гараж:
Нет
Баня:
Нет
Терраса:
Нет
Панорамные окна:
Нет
Мастер-спальня:
Нет
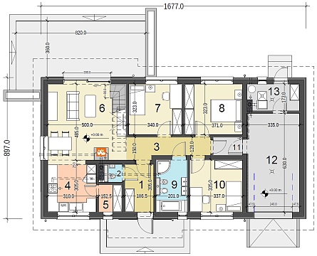
Планировка
Характеристики
- Общая площадь: 245 м2
- Жилая площадь: 97 м2
- Количество этажей: 2
- Гараж: На 1 машину
- Площадь кровли: 155,80 м2
- Размер: 16x10
- Фундамент: Дома с ленточным фундаментом
Отправьте свои контакты и мы расчитаем вам смету
Скорее всего вам подойдут следующие проекты домов:
Проект двухэтажного дома Дом id-115390
Для большой семьи
Дом подходит для:
Дом подходит для:
Проект двухэтажного дома Дом id-116813
Для большой семьи
Дом подходит для:
Дом подходит для:
Проект двухэтажного дома Дом id-110330
Для большой семьи
Дом подходит для:
Дом подходит для:


























