Проект двухэтажного дома Дом из бревна ХСМ-21-О150
Площадь
152 м 2
Размер дома:
9x10
Этажей:
2
Спален:
4
Санузел:
0
Гараж:
Нет
Баня:
Нет
Терраса:
Нет
Панорамные окна:
Нет
Мастер-спальня:
Нет
О проекте
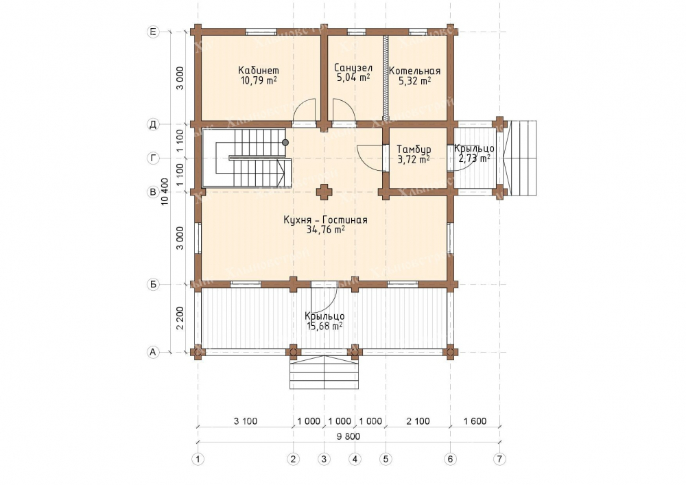
Проект, где нет случайных деталей. 152 м² обеспечивают лёгкость и мобильность в повседневной жизни. Двухэтажная современная планировка обеспечивает комфортную навигацию внутри дома. Стены из бревна хорошо держат тепло и защищают от шума. Количество спален — 4, делая планировку гибкой.Характеристики
- Общая площадь: 152 м2
- Количество этажей: 2
- Стиль, разновидность: Дома в ином стиле
- Форма: Прямоугольные дома
- Тип кровли: Дома с иной крышей
- Отделка: Без отделки
- Размер: 9x10
Отправьте свои контакты и мы расчитаем вам смету
Скорее всего вам подойдут следующие проекты домов:
Дом подходит для:
Дом подходит для:
Дом подходит для:












