Проект двухэтажного дома Дом из бревна Проект №12
Площадь
227 м 2
Размер дома:
Этажей:
2
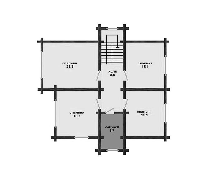
Спален:
4
Санузел:
0
Гараж:
Нет
Баня:
Нет
Терраса:
Нет
Панорамные окна:
Нет
Мастер-спальня:
Нет
О проекте
Умное пространство, где нет ничего лишнего — только удобство, эстетика и гармония в каждой детали.Дом объёмом 78 м² — пример грамотного проектирования. Двухэтажная современная планировка организует пространство максимально эффективно. В качестве кровли использована ондулин — материал, проверенный временем. В доме предусмотрено 2 спальни, что важно для комфорта.Характеристики
- Общая площадь: 227 м2
- Количество этажей: 2
- Стиль, разновидность: Дома в стиле Кантри
- Форма: Прямоугольные дома
- Тип кровли: Дома с двускатной крышей
- Отделка: Без отделки
Отправьте свои контакты и мы расчитаем вам смету
Скорее всего вам подойдут следующие проекты домов:
Дом подходит для:
Дом подходит для:
Дом подходит для:











