Проект двухэтажного дома Отражение
Площадь
234 м 2
Размер дома:
13x13
Этажей:
2
Спален:
3
Санузел:
0
Гараж:
Нет
Баня:
Нет
Терраса:
Нет
Панорамные окна:
Нет
Мастер-спальня:
Нет
О проекте
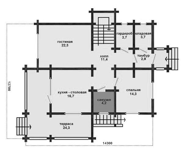
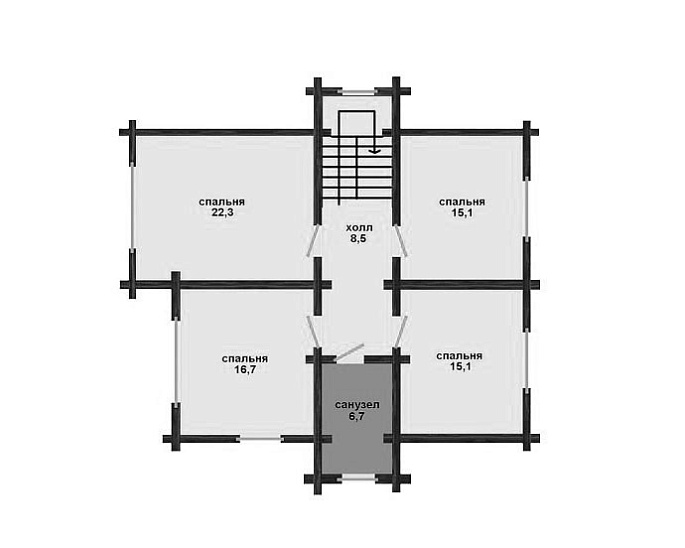
Великолепный двухэтажный дом площадью 234 м² из оцилиндрованного бревна. Три просторные спальни под мансардной крышей сочетают русские традиции и современный комфорт. Натуральные материалы создают особую атмосферу уюта и тепла.Характеристики
- Общая площадь: 234 м2
- Количество этажей: 2
- Стиль, разновидность: Дома в стиле Русский
- Форма: Квадратные дома
- Тип кровли: Дома с мансардной крышей
- Отделка: Без отделки
- Размер: 13x13
Отправьте свои контакты и мы расчитаем вам смету
Скорее всего вам подойдут следующие проекты домов:
Дом подходит для:
Дом подходит для:
Дом подходит для:













