Проект двухэтажного дома Дом из бревна XX45
Площадь
179 м 2
Размер дома:
9x11
Этажей:
2
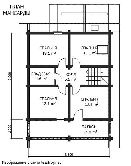
Спален:
4
Санузел:
0
Гараж:
Нет
Баня:
Нет
Терраса:
Нет
Панорамные окна:
Нет
Мастер-спальня:
Нет
О проекте
Просторный двухэтажный дом площадью 179 м² из оцилиндрованного бревна — это воплощение природной красоты. Четыре спальни и натуральные материалы делают его идеальным для семейного проживания.Характеристики
- Общая площадь: 179 м2
- Количество этажей: 2
- Стиль, разновидность: Дома в ином стиле
- Форма: Прямоугольные дома
- Тип кровли: Дома с многощипцовой крышей
- Отделка: Без отделки
- Размер: 9x11
Отправьте свои контакты и мы расчитаем вам смету
Скорее всего вам подойдут следующие проекты домов:
Дом подходит для:
Дом подходит для:
Дом подходит для:












