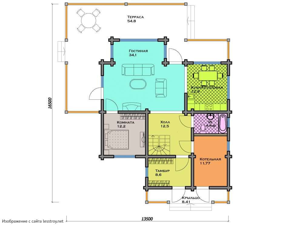
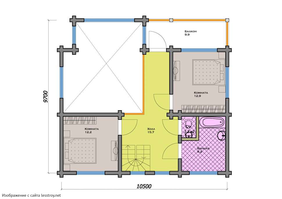
Проект двухэтажного дома Дом из бруса 10х11 ДБ-118
Площадь
243 м 2
Размер дома:
Этажей:
2
Спален:
3
Санузел:
0
Гараж:
Нет
Баня:
Нет
Терраса:
Нет
Панорамные окна:
Нет
Мастер-спальня:
Нет
О проекте
Интерьеры, которые не требуют особого ухода, но всегда выглядят безупречно. Стильный интерьер в рамках 243 м². Проект включает 3 спальни — удобно для семьи. Архитектура выполнена в стиле дома в классическом стиле. металлочерепица придаёт дому выразительность и надёжность.Характеристики
- Общая площадь: 243 м2
- Количество этажей: 2
- Стиль, разновидность: Дома в ином стиле
- Форма: Квадратные дома
- Тип кровли: Дома с односкатной крышей
- Отделка: Без отделки
Отправьте свои контакты и мы расчитаем вам смету
Скорее всего вам подойдут следующие проекты домов:
Дом подходит для:
Дом подходит для:
Дом подходит для:










