Проект двухэтажного дома Теплый дом Гестия
Площадь
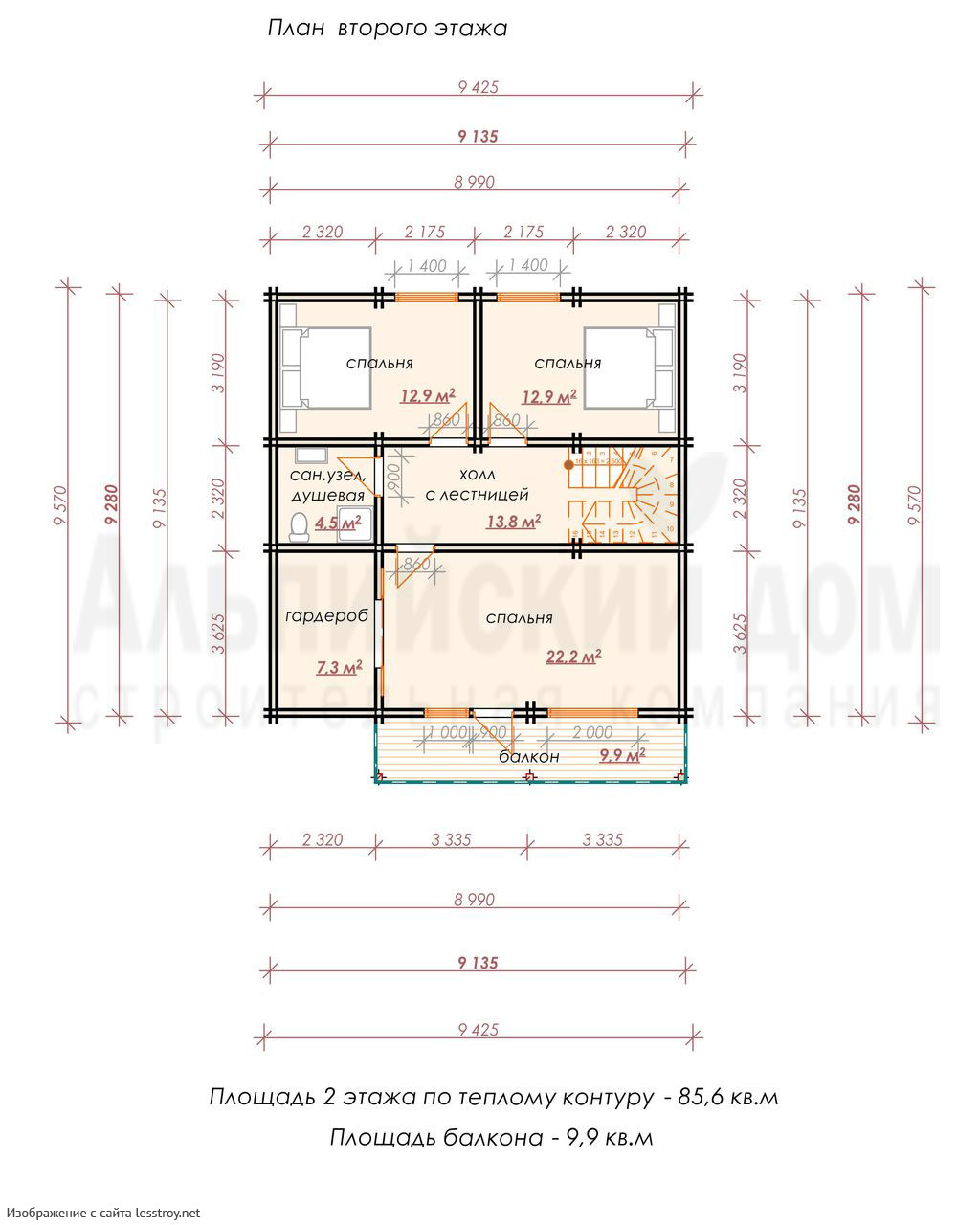
229 м 2
Размер дома:
9x9
Этажей:
2
Спален:
4
Санузел:
0
Гараж:
Нет
Баня:
Нет
Терраса:
Нет
Панорамные окна:
Нет
Мастер-спальня:
Нет
О проекте
Здесь даже балкон становится любимым местом. Простота и функциональность заключены в 229 м². Количество спален — 4, делая планировку гибкой. Двухэтажная просторная планировка создаёт идеальные условия для жизни всей семьи. Архитектура выполнена в стиле дома в классическом стиле.Характеристики
- Общая площадь: 229 м2
- Количество этажей: 2
- Стиль, разновидность: Дома в ином стиле
- Форма: Прямоугольные дома
- Тип кровли: Дома с иной крышей
- Отделка: Без отделки
- Размер: 9x9
Отправьте свои контакты и мы расчитаем вам смету
Скорее всего вам подойдут следующие проекты домов:
Дом подходит для:
Дом подходит для:
Дом подходит для:









