Ваш город:

Проект двухэтажного дома Дом из бруса 9.5х9.5 под усадку с эркером и террасой

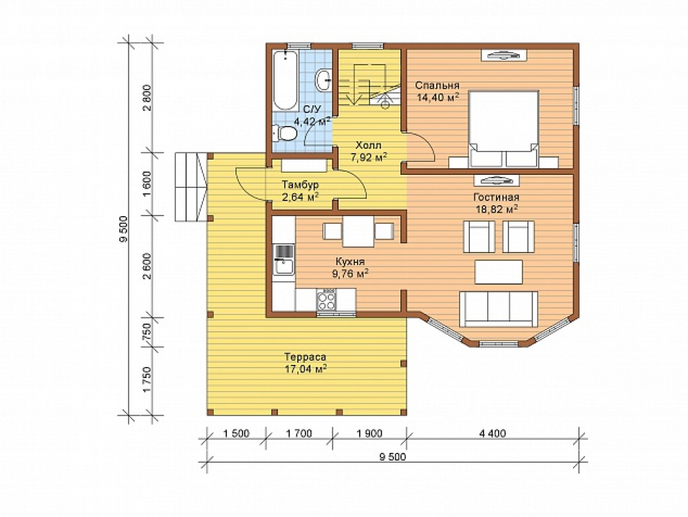
Площадь: 180 м2
Размер:
Дом подходит для:
Для большой семьи
Этажей:
2
Стены:
Кровля:
Рубероид
Цена:
Оставить заявку
Площадь
180 м 2
Размер дома:
Этажей:
2
Спален:
4
Санузел:
0
Гараж:
Нет
Баня:
Нет
Терраса:
Нет
Панорамные окна:
Нет
Мастер-спальня:
Нет
О проекте
Проект создаёт визуальную лёгкость, чтобы подчеркнуть весомость семьи. Площадь 130 м² открывает простор для креативных решений. Крыша из рубероид подчёркивает современный облик дома. Архитектура выполнена в стиле дома в стиле хай тек. Двухэтажная удобная планировка разделяет приватные и общественные зоны.

Характеристики
  • Общая площадь: 180 м2
  • Количество этажей: 2
  • Стиль, разновидность: Дома в стиле Русский
  • Форма: Квадратные дома
  • Тип кровли: Дома с двускатной крышей
  • Отделка: Без отделки
Отправьте свои контакты и мы расчитаем вам смету
Прикрепить документ
Скорее всего вам подойдут следующие проекты домов:
Добавить к сравнению
Добавить в избранное
Изображение
Изображение
Изображение
Изображение
Изображение
Дом подходит для:
Семья с одним ребенком
Добавить к сравнению
Добавить в избранное
Изображение
Дом подходит для:
Семья с одним ребенком
Добавить к сравнению
Добавить в избранное
Изображение
Изображение
Дом подходит для:
Для большой семьи