Проект одноэтажного дома Дом из бруса ДБ-51 проект Москва
Площадь
155 м 2
Размер дома:
8x10
Этажей:
1
Спален:
0
Санузел:
0
Гараж:
Нет
Баня:
Нет
Терраса:
Нет
Панорамные окна:
Нет
Мастер-спальня:
Нет
О проекте
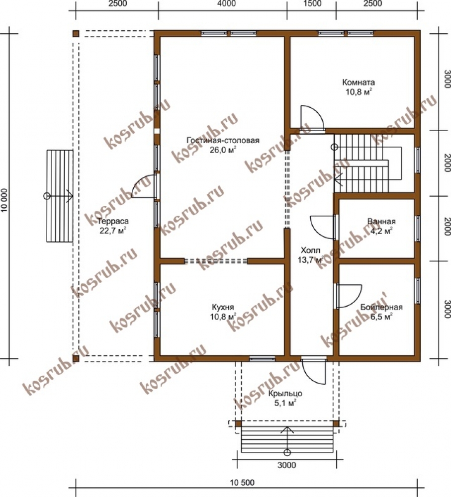
Архитектурный образ дома сочетает эстетику и практичность. В доме — 155 м² рационально использованного пространства. Конструкция из Бруса обеспечивает прочность и долговечность. Одноэтажная уютная планировка делает зонирование более логичным. В качестве кровли использована рубероид — материал, проверенный временем.Характеристики
- Общая площадь: 155 м2
- Количество этажей: 1
- Стиль, разновидность: Дома в ином стиле
- Тип кровли: Дома с иной крышей
- Отделка: Без отделки
- Размер: 8x10
Отправьте свои контакты и мы расчитаем вам смету
Скорее всего вам подойдут следующие проекты домов:
Дом подходит для:












