Проект двухэтажного дома Дом из бруса ДБ-58 проект Питер
Площадь
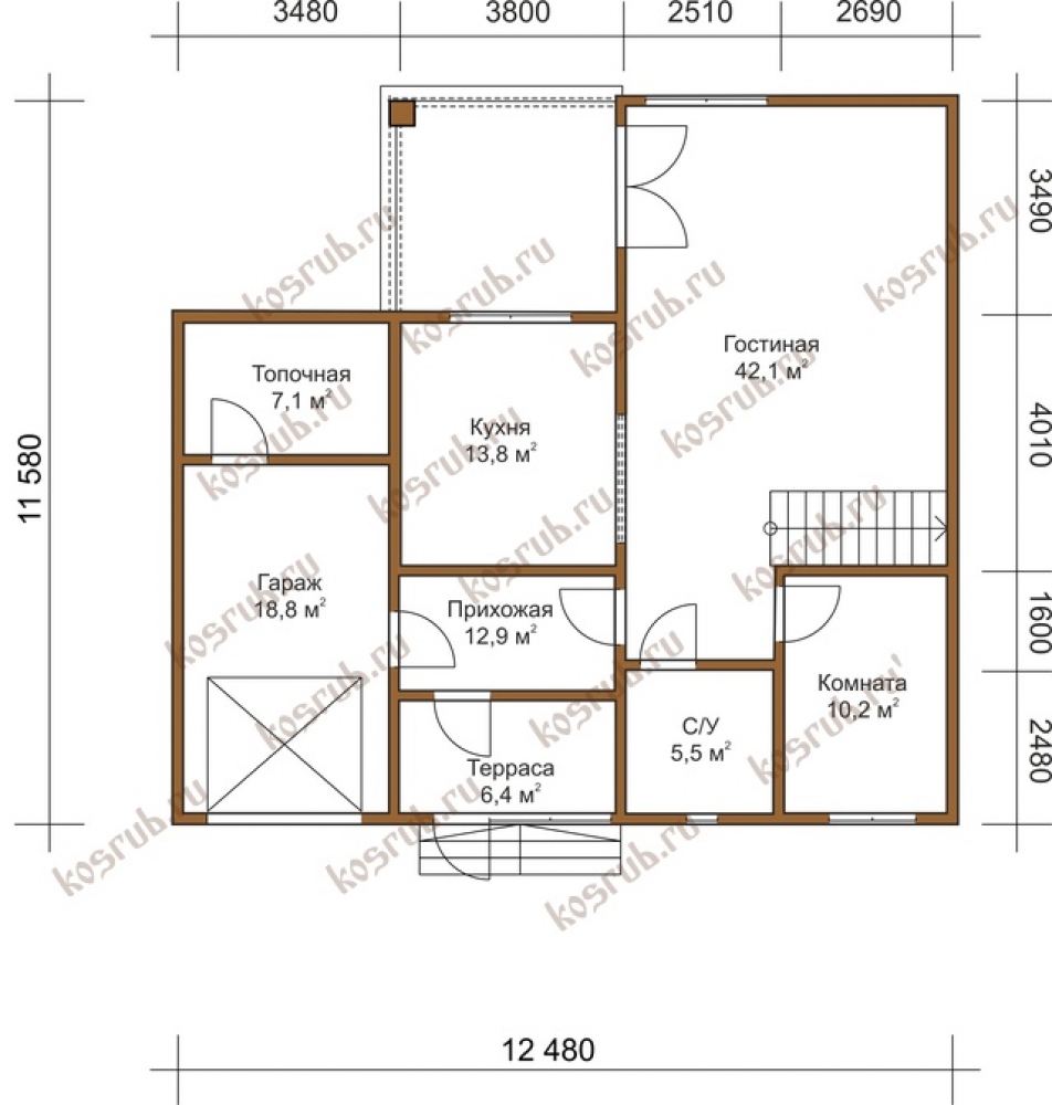
170 м 2
Размер дома:
11x12
Этажей:
2
Спален:
0
Санузел:
0
Гараж:
Нет
Баня:
Нет
Терраса:
Нет
Панорамные окна:
Нет
Мастер-спальня:
Нет
О проекте
Пространство, наполненное светом и гармонией. Дом предлагает 170 м² рационально организованного интерьера. Крыша из рубероид подчёркивает современный облик дома. Двухэтажная просторная планировка разграничивает спальные и дневные помещения. Дом спроектирован в духе дома в классическом стиле.Характеристики
- Общая площадь: 170 м2
- Количество этажей: 2
- Стиль, разновидность: Дома в ином стиле
- Тип кровли: Дома с иной крышей
- Отделка: Без отделки
- Размер: 11x12
Отправьте свои контакты и мы расчитаем вам смету
Скорее всего вам подойдут следующие проекты домов:
Дом подходит для:
Дом подходит для:
Дом подходит для:










