Проект двухэтажного дома дом из бруса «Княжево»
Площадь
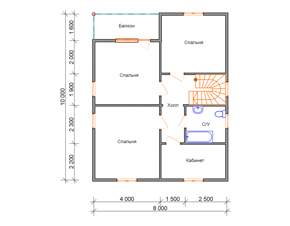
153 м 2
Размер дома:
8x10
Этажей:
2
Спален:
4
Санузел:
0
Гараж:
Нет
Баня:
Нет
Терраса:
Нет
Панорамные окна:
Нет
Мастер-спальня:
Нет
О проекте
Проект воплощает идею дома как убежища от городской суеты. 142 м² — метраж, с которым легко жить. В качестве кровли использована битумная черепица — материал, проверенный временем. Одноэтажная уютная планировка обеспечивает практичное распределение комнат. Бруса делает дом надёжным при любой погоде.Характеристики
- Общая площадь: 153 м2
- Количество этажей: 2
- Стиль, разновидность: Дома в ином стиле
- Форма: Прямоугольные дома
- Тип кровли: Дома с шатровой крышей
- Отделка: Без отделки
- Размер: 8x10
Отправьте свои контакты и мы расчитаем вам смету
Скорее всего вам подойдут следующие проекты домов:
Дом подходит для:










