Проект одноэтажного дома Дом из бруса - проект ДБ-120
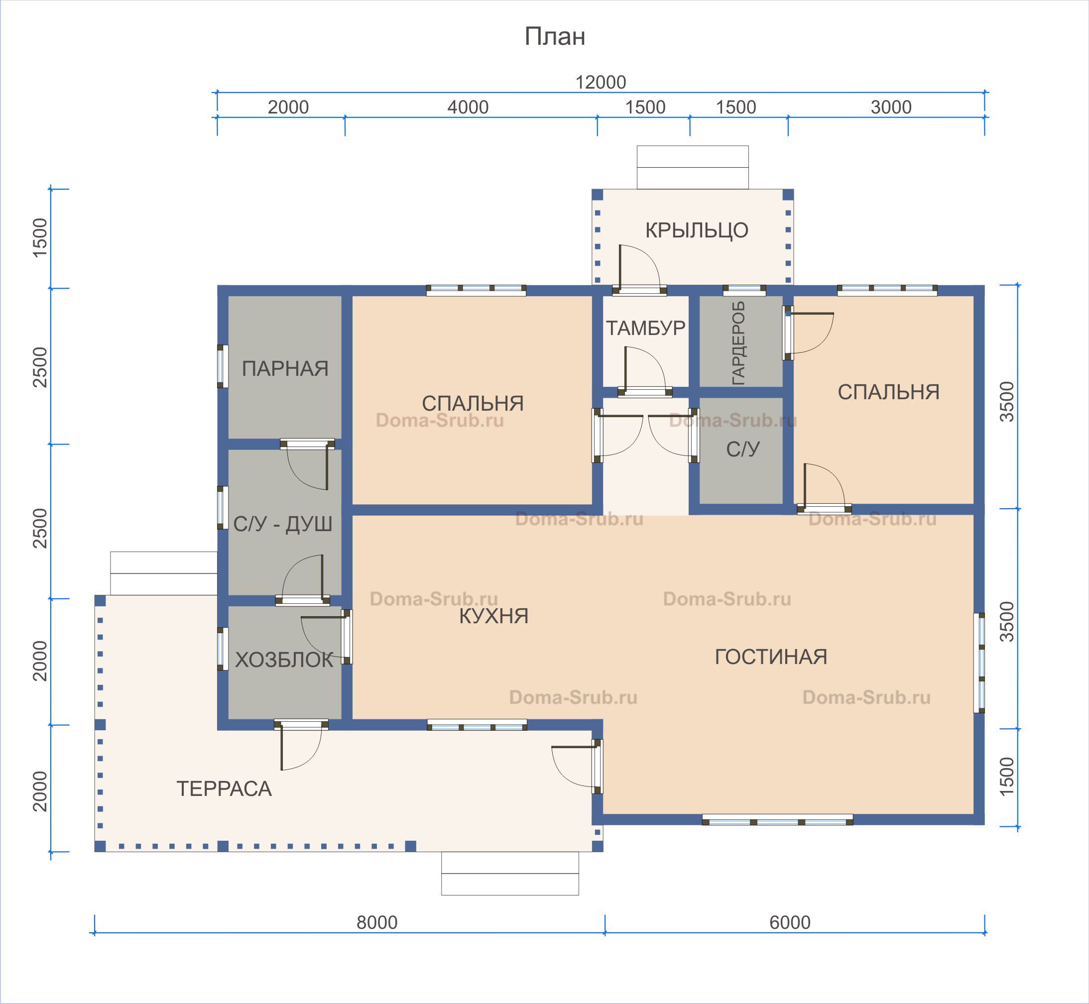
Площадь
126 м 2
Размер дома:
10x12
Этажей:
1
Спален:
2
Санузел:
0
Гараж:
Нет
Баня:
Нет
Терраса:
Нет
Панорамные окна:
Нет
Мастер-спальня:
Нет
О проекте
Естественные материалы и гармония с ландшафтом.Стильный интерьер в рамках 48 м². Одноэтажная современная планировка обеспечивает практичное распределение комнат. Архитектура выполнена в стиле дома в стиле модерн. Выбор бруса обусловлен его теплоизоляционными свойствами.Характеристики
- Общая площадь: 126 м2
- Количество этажей: 1
- Стиль, разновидность: Дома в стиле Прованс
- Форма: Прямоугольные дома
- Тип кровли: Дома с двускатной крышей
- Отделка: Без отделки
- Размер: 10x12
Отправьте свои контакты и мы расчитаем вам смету
Скорее всего вам подойдут следующие проекты домов:
Дом подходит для:
Дом подходит для:














