Проект двухэтажного дома Дом из оцилиндрованного бревна ОЦБ-26
Площадь
267 м 2
Размер дома:
12x15
Этажей:
2
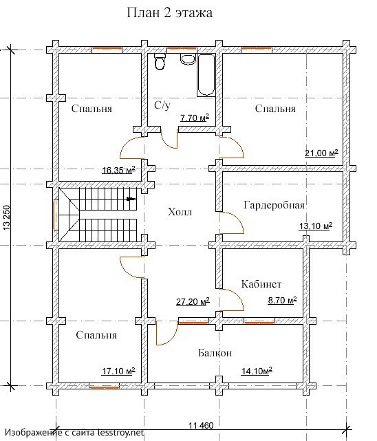
Спален:
4
Санузел:
0
Гараж:
Нет
Баня:
Нет
Терраса:
Нет
Панорамные окна:
Нет
Мастер-спальня:
Нет
О проекте
Жилье, где просторные помещения создают уютную атмосферу. Больше, чем просто метры: 293 м² — это дом. Стены из кирпича хорошо держат тепло и защищают от шума. Крыша из черепица подчёркивает современный облик дома. Количество спален — 4, делая планировку гибкой.Характеристики
- Общая площадь: 267 м2
- Количество этажей: 2
- Стиль, разновидность: Дома в стиле Прованс
- Форма: Прямоугольные дома
- Тип кровли: Дома с многощипцовой крышей
- Отделка: Без отделки
- Размер: 12x15
Отправьте свои контакты и мы расчитаем вам смету
Скорее всего вам подойдут следующие проекты домов:
Дом подходит для:
Дом подходит для:
Дом подходит для:










