Проект двухэтажного дома Дом из профилированного бруса под усадку Белев
Площадь
253 м 2
Размер дома:
Этажей:
2
Спален:
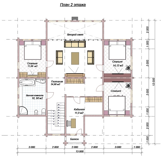
4
Санузел:
0
Гараж:
Нет
Баня:
Нет
Терраса:
Нет
Панорамные окна:
Нет
Мастер-спальня:
Нет
О проекте
Проект из бруса площадью 253 м² представляет собой просторный двухэтажный дом с четырьмя спальнями. Архитектура сочетает в себе традиционный стиль с современными элементами, создавая уютную атмосферу. Большие окна наполняют интерьер естественным светом, а продуманная планировка обеспечивает комфорт для всей семьи. Дом идеально подходит для тех, кто ценит натуральные материалы и функциональность.Характеристики
- Общая площадь: 253 м2
- Количество этажей: 2
- Стиль, разновидность: Дома в ином стиле
- Форма: Прямоугольные дома
- Тип кровли: Дома с иной крышей
- Отделка: Без отделки
Отправьте свои контакты и мы расчитаем вам смету
Скорее всего вам подойдут следующие проекты домов:
Дом подходит для:
Проект двухэтажного дома Разноуровневый дом из бруса со вторым светом по проекту Восторг
Для большой семьи
Дом подходит для:
Дом подходит для:
Дом подходит для:













