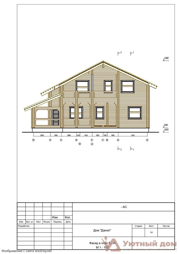
Проект двухэтажного дома Дом из простого бруса 150х150 по проекту № 059
Площадь
174 м 2
Размер дома:
11x12
Этажей:
2
Спален:
4
Санузел:
0
Гараж:
Нет
Баня:
Нет
Терраса:
Нет
Панорамные окна:
Нет
Мастер-спальня:
Нет
О проекте
Дом из простого бруса площадью 174 м² впечатляет просторной планировкой и надежностью конструкции. Натуральный материал обеспечивает отличную теплоизоляцию и экологичность. Внутреннее пространство позволяет воплотить самые смелые дизайнерские идеи. Идеальный вариант для комфортного проживания большой семьи.Характеристики
- Общая площадь: 174 м2
- Количество этажей: 2
- Стиль, разновидность: Дома в ином стиле
- Форма: Прямоугольные дома
- Тип кровли: Дома с двускатной крышей
- Отделка: Без отделки
- Размер: 11x12
Отправьте свои контакты и мы расчитаем вам смету
Скорее всего вам подойдут следующие проекты домов:
Дом подходит для:
Дом подходит для:
Проект двухэтажного дома Дом из профилированного бруса сечением 190*120
Семья с двумя детьми
Дом подходит для:
Дом подходит для:











