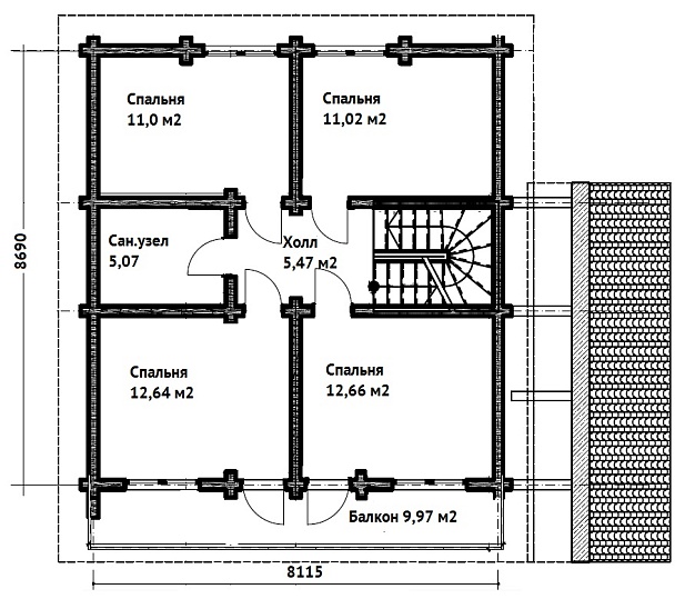
Проект двухэтажного дома Дом площадью 182,6 м2
Площадь
180 м 2
Размер дома:
10x11
Этажей:
2
Спален:
4
Санузел:
0
Гараж:
Нет
Баня:
Нет
Терраса:
Нет
Панорамные окна:
Нет
Мастер-спальня:
Нет
О проекте
Материалы, приятные на ощупь и радующие глаз в любое время года. Общее пространство 180 м² вдохновляет на создание уюта. металлочерепица придаёт дому выразительность и надёжность. Двухэтажная просторная планировка организует пространство максимально эффективно. Количество спален — 4, делая планировку гибкой.Характеристики
- Общая площадь: 180 м2
- Количество этажей: 2
- Стиль, разновидность: Дома в ином стиле
- Тип кровли: Дома с иной крышей
- Отделка: Без отделки
- Размер: 10x11
Отправьте свои контакты и мы расчитаем вам смету
Скорее всего вам подойдут следующие проекты домов:
Дом подходит для:
Дом подходит для:
Дом подходит для:













