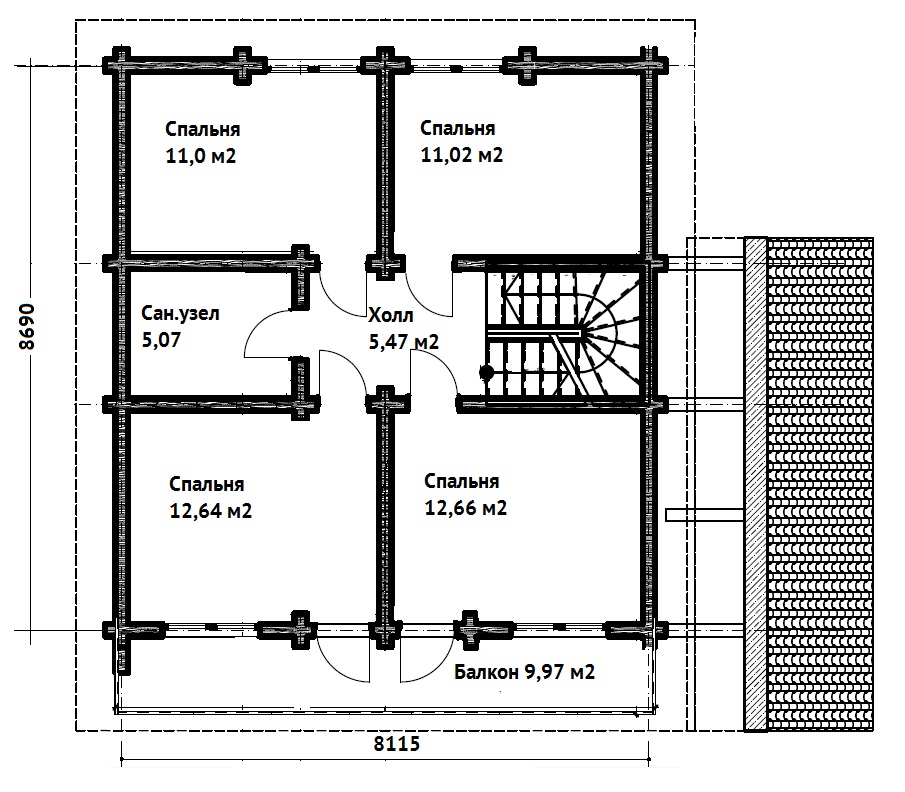
Проект двухэтажного дома ПБ-147
Площадь
147 м 2
Размер дома:
9x10
Этажей:
2
Спален:
4
Санузел:
0
Гараж:
Нет
Баня:
Нет
Терраса:
Нет
Панорамные окна:
Нет
Мастер-спальня:
Нет
О проекте
Пространство, где можно чувствовать себя как в раю. Площадь 147 м² — оптимум для тех, кто ценит порядок и воздух. Количество спален — 4, делая планировку гибкой. Брус делает дом надёжным при любой погоде. В качестве кровли использована металлочерепица — материал, проверенный временем.Характеристики
- Общая площадь: 147 м2
- Количество этажей: 2
- Стиль, разновидность: Дома в стиле Русский
- Форма: Прямоугольные дома
- Тип кровли: Дома с двускатной крышей
- Отделка: Без отделки
- Размер: 9x10
Отправьте свои контакты и мы расчитаем вам смету
Скорее всего вам подойдут следующие проекты домов:
Дом подходит для:
Дом подходит для:
Дом подходит для:














