Проект двухэтажного дома Дом «Радужный»
Площадь
185 м 2
Размер дома:
Этажей:
2
Спален:
4
Санузел:
0
Гараж:
Нет
Баня:
Нет
Терраса:
Нет
Панорамные окна:
Нет
Мастер-спальня:
Нет
О проекте
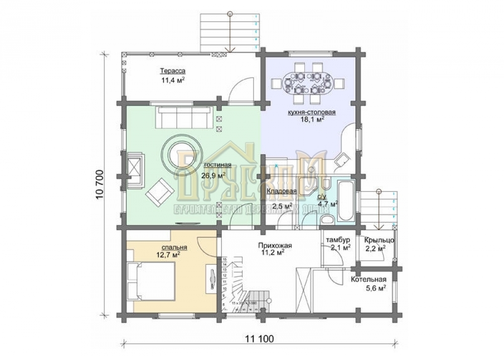
Жизнерадостный характер этого проекта подчеркивается сочетанием южного настроения и комфортарусского дома. Просторные 185 м² из профилированного бруса открывают большие возможности для организации пространства, рубероид гарантирует долговечность. Это отличный выбор для вдохновляющих вечеров и встреч с друзьями. В доме каждый день наполнен светом и теплом.Характеристики
- Общая площадь: 185 м2
- Количество этажей: 2
- Стиль, разновидность: Дома в стиле Шале
- Форма: Прямоугольные дома
- Тип кровли: Дома с двускатной крышей
- Отделка: Без отделки
Отправьте свои контакты и мы расчитаем вам смету
Скорее всего вам подойдут следующие проекты домов:
Дом подходит для:
Дом подходит для:
Дом подходит для:













