Проект одноэтажного дома Дом Раево
Дом подходит для:
Площадь
210 м 2
Размер дома:
14х16,6
Этажей:
1
Спален:
1
Санузел:
1
Гараж:
Нет
Баня:
Нет
Терраса:
Нет
Панорамные окна:
Нет
Мастер-спальня:
Нет
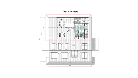
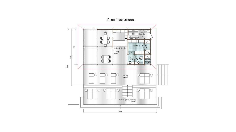
Планировка
Характеристики
- Общая площадь: 210 м2
- Жилая площадь: 60 м2
- Количество этажей: 1
- Гараж: нет
- Площадь кровли: 213 м2
- Отделка: Без отделки
- Фундамент: Дома с плитным фундаментом
Материалы и перечень работ
- Фундамент плитный
- Монтаж стен Домокомплекта с подрезкой проемов
- Монтаж балок пола, террас и перекрытий
- Утепление стен и перекрытий Домокомплекта
- Монтаж кровли с финишным покрытием
- Окна, двери — дерево или алюминий
- Комплект инженерных сетей с монтажом (котел, теплые полы, батареи, электрика, сантехника, вентиляция)
- Шлифовка и покраска внутренних и наружных стен маслом
- Монтаж подшивки свесов кровли и цоколя из лиственницы
- Фундамент плитный
- Монтаж стен Домокомплекта с подрезкой проемов
- Монтаж балок пола, террас и перекрытий
- Утепление стен и перекрытий Домокомплекта
- Монтаж кровли с финишным покрытием
- Окна, двери — дерево или алюминий
- Комплект инженерных сетей с монтажом (котел, теплые полы, батареи, электрика, сантехника, вентиляция)
- Шлифовка и покраска внутренних и наружных стен маслом
- Монтаж подшивки свесов кровли и цоколя из лиственницы
Что еще входит в стоимость:
Отправьте свои контакты и мы расчитаем вам смету
Скорее всего вам подойдут следующие проекты домов:
Дом подходит для:

