Проект одноэтажного дома Тапиола
Площадь
187 м 2
Размер дома:
Этажей:
1
Спален:
3
Санузел:
0
Гараж:
Нет
Баня:
Нет
Терраса:
Нет
Панорамные окна:
Да
Мастер-спальня:
Да
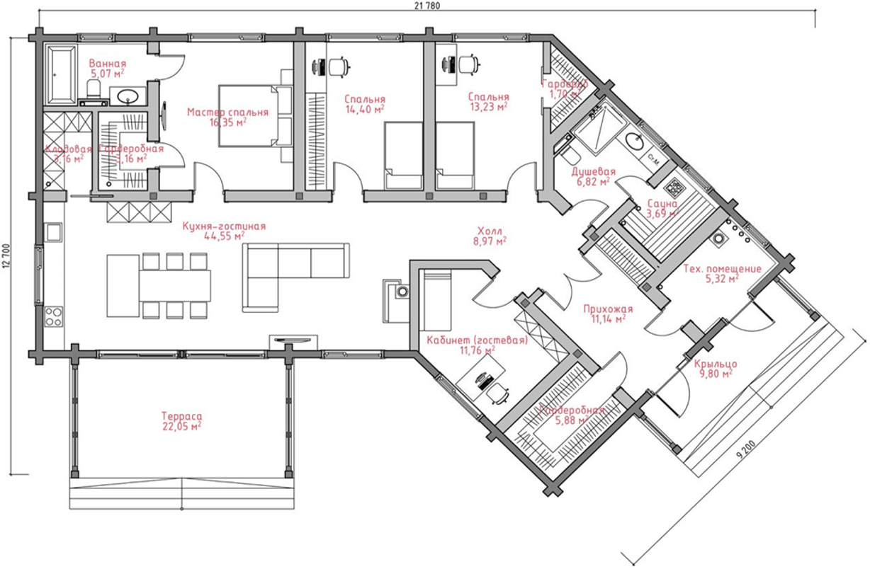
О проекте
Уютный дом из бруса площадью 187 м² с тремя спальнями идеален для семьи. Черепичная кровля и баня добавляют ему комфорта.Характеристики
- Общая площадь: 187 м2
- Количество этажей: 1
- Стиль, разновидность: Дома в ином стиле
- Форма: Г-образные дома
- Тип кровли: Дома с иной крышей
- Отделка: Без отделки
Отправьте свои контакты и мы расчитаем вам смету
Скорее всего вам подойдут следующие проекты домов:
Проект одноэтажного дома Дом Раево
Семья с одним ребенком
Дом подходит для:
Дом подходит для:


