Проект двухэтажного дома Дом «Семейный»
Площадь
165 м 2
Размер дома:
Этажей:
2
Спален:
4
Санузел:
0
Гараж:
Нет
Баня:
Нет
Терраса:
Нет
Панорамные окна:
Нет
Мастер-спальня:
Нет
О проекте
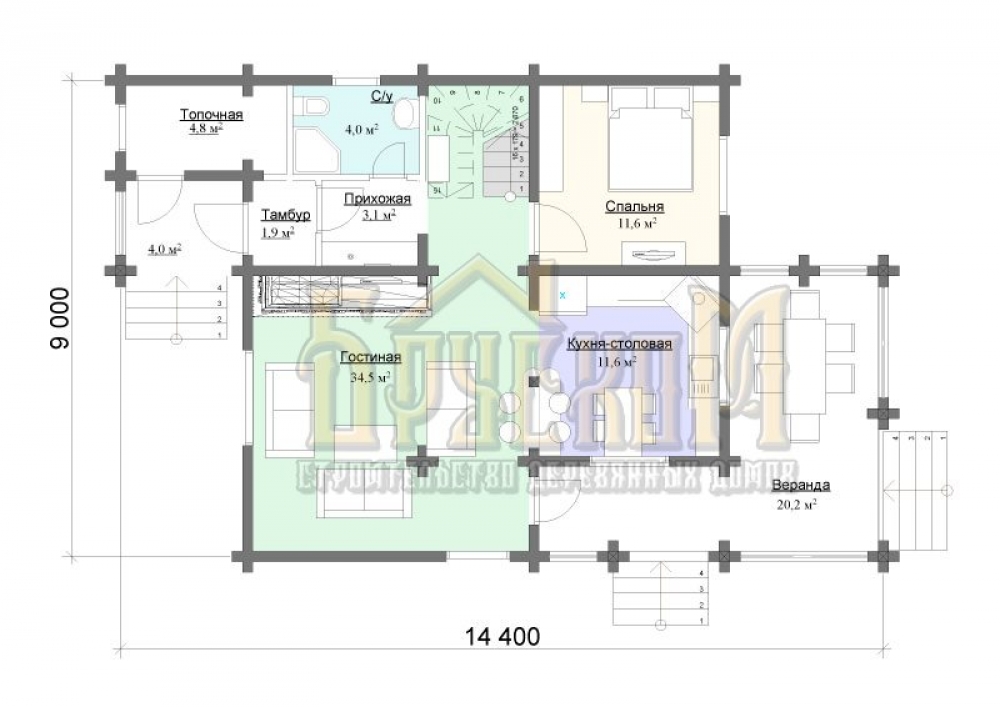
Бревенчатый дом площадью 165 м² излучает природное тепло и очарование. Натуральные бревна придают фасаду аутентичный вид. Внутренние помещения просторны и наполнены светом благодаря большим окнам. Дом идеально подходит для тех, кто ценит традиции и экологичность.Характеристики
- Общая площадь: 165 м2
- Количество этажей: 2
- Стиль, разновидность: Финские дома
- Форма: Квадратные дома
- Тип кровли: Дома с многощипцовой крышей
- Отделка: Без отделки
Отправьте свои контакты и мы расчитаем вам смету
Скорее всего вам подойдут следующие проекты домов:
Дом подходит для:
Дом подходит для:
Дом подходит для:












