Проект одноэтажного дома Эдинбург
Дом подходит для:
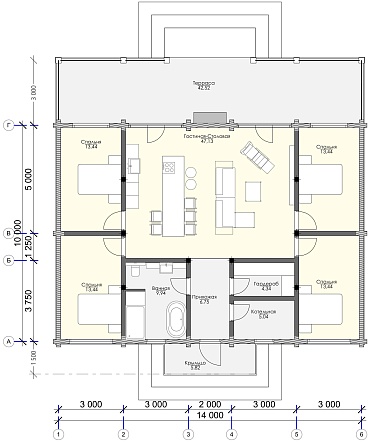
Площадь
189 м 2
Размер дома:
10х14
Этажей:
1
Спален:
4
Санузел:
1
Гараж:
Нет
Баня:
Нет
Терраса:
Да
Панорамные окна:
Нет
Мастер-спальня:
Нет
Планировка
Фасады
О проекте
Просторный дом Эдинбург площадью 189 м² с жилыми 121 м² — воплощение стиля и комфорта. Брус в стенах наполняет интерьер теплом, а натуральная черепица на крыше добавляет надежности. Четыре спальни и санузел обеспечивают удобство для большой семьи. Свайный фундамент подчеркивает устойчивость этого жилья.Характеристики
- Общая площадь: 189 м2
- Жилая площадь: 121 м2
- Количество этажей: 1
- Гараж: нет
- Площадь кровли: 194 м2
- Форма: Квадратные дома
- Тип кровли: Дома с двускатной крышей
- Пристрой: Дома с террасой
- Отделка: С черновой отделкой
- Фундамент: Дома со свайным фундаментом
Материалы и перечень работ
- Железобетонные забивные сваи сечением 20x20 см длиной 3 метра из бетона высшего качества
- Устройство обвязочного бруса на фундамент
- Привязка и разметка фундамента на участке
- Домокомплект из клееного бруса 200x185 мм.
- Сборка домокомплекта на герметик
- Антисептирование бруса, обработка торцов воском
- Все расходные материалы для сборки
- Врезка балок пола 1 этажа
- Устройство стропильной системы
- Утепление кровли 20 см, качественные паро- и гидромембраны
- Капитальная кровля (утепление 20 см, пароизоляция, гидроизоляция, обрешетка и контробрешетка) с покрытием натуральной черепицей BRAAS
- Деревянные окна и входные двери (евробрус трехламельный 78, стеклопакет трехслойный 40 мм) с подготовкой проемов и монтажом
- В стоимость не входит
- В стоимость не входит
- Железобетонные забивные сваи сечением 20x20 см длиной 3 метра из бетона высшего качества
- Устройство обвязочного бруса на фундамент
- Привязка и разметка фундамента на участке
- Домокомплект из клееного бруса 200x185 мм.
- Сборка домокомплекта на герметик
- Антисептирование бруса, обработка торцов воском
- Все расходные материалы для сборки
- Врезка балок пола 1 этажа
- Устройство стропильной системы
- Утепление кровли 20 см, качественные паро- и гидромембраны
- Капитальная кровля (утепление 20 см, пароизоляция, гидроизоляция, обрешетка и контробрешетка) с покрытием натуральной черепицей BRAAS
- Деревянные окна и входные двери (евробрус трехламельный 78, стеклопакет трехслойный 40 мм) с подготовкой проемов и монтажом
- В стоимость не входит
- В стоимость не входит
Что еще входит в стоимость:
Отправьте свои контакты и мы расчитаем вам смету
Скорее всего вам подойдут следующие проекты домов:
Дом подходит для:
Дом подходит для:
Проект одноэтажного дома Блюскай
Семья с двумя детьми
Дом подходит для:
Дом подходит для:












