Проект двухэтажного дома Эдмонтон
Дом подходит для:
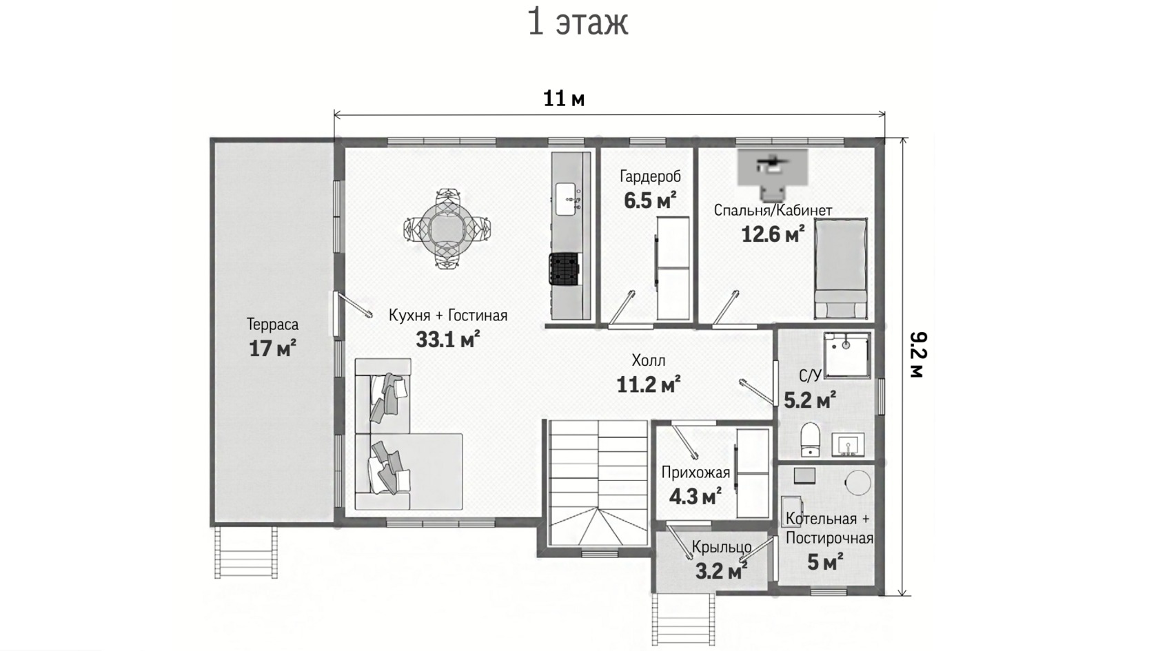
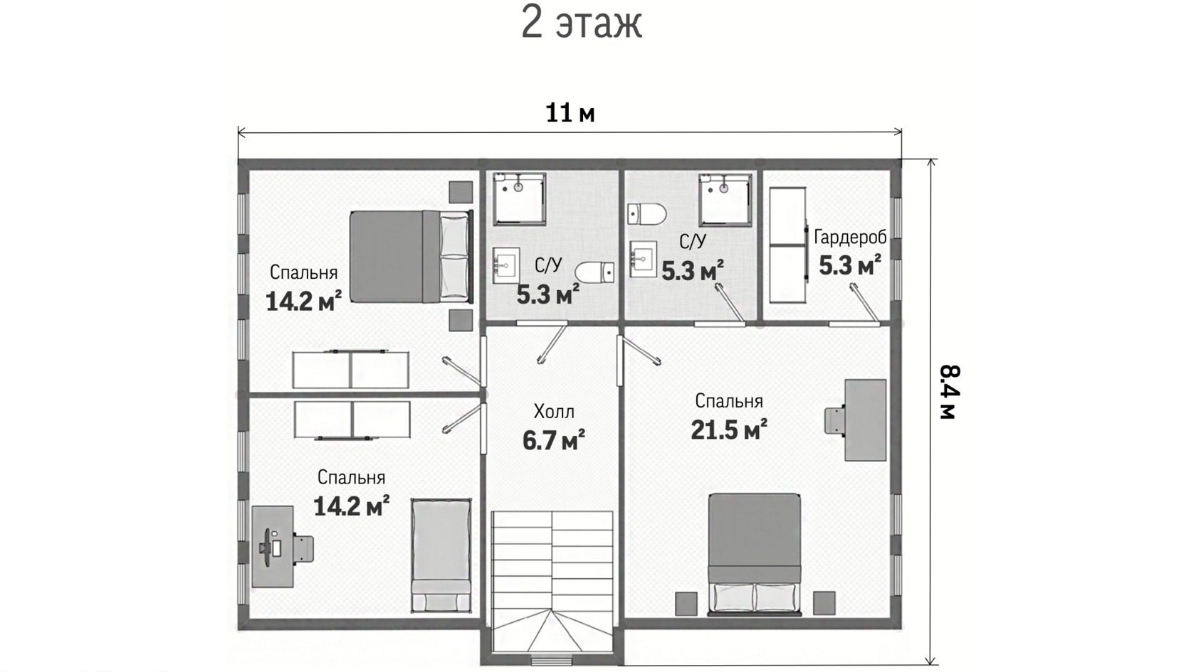
Площадь
157 м 2
Размер дома:
11х9.2
Этажей:
2
Спален:
4
Санузел:
3
Гараж:
Нет
Баня:
Нет
Терраса:
Да
Панорамные окна:
Нет
Мастер-спальня:
Нет
Планировка
Фасады
О проекте
Вместительный двухэтажный дом площадью 157 м² - идеальное решение для большой семьи. 120 м² жилой зоны организованы с заботой о комфорте каждого домочадца. Каркасная технология обеспечивает надежность, а металлочерепица придает экстерьеру солидность. Это пространство, где современные технологии служат созданию уютного семейного гнезда.Характеристики
- Общая площадь: 157 м2
- Жилая площадь: 120 м2
- Количество этажей: 2
- Гараж: нет
- Площадь кровли: 163 м2
- Форма: Квадратные дома
- Тип кровли: Дома с многощипцовой крышей
- Пристрой: Дома с верандой
- Отделка: С инженерными коммуникациями
- Фундамент: Дома со свайным фундаментом
Материалы и перечень работ
- Ж/Б сваи 150х150х3000 мм.
- Гидроизоляция: рубероид 2 слоя.
- Обвязка: Три доски на ребро 35х190мм (антисептирована).
- Внешние стены каркас дома: из строганной доски 35х190 мм и дополнительным, по стенам монтируется вентиляционный зазор из строганного бруска 20х40мм. По вентиляционному зазору монтируется ОСБ-9мм.
- Паро-ветроизоляция стены: Изоспан А и Б. «Изоспан Б проклеивается армированным скотчем».
- Лаги: из строганной доска 35х190мм, шаг 58-59мм, (антисептированы)
- Внутренняя отделка стен, перегородок и потолков 2-х этажей: По стенам горизонтально монтируется имитация бруса 15х135 мм , потолок подшивается вагонкой штиль. В санузлах монтаж обрешётки из доски 20х90мм шагом 40 см. Отделка стен ГКЛВ-9мм в два слоя в шахматном порядке, потолок ГКЛВ-9мм в 1 слой.
- Полы черновые: обрезная доска 22х100мм с шагом 30мм.
- Кровля: Волнистый лист (металлочерепица), с установкой снегозадержателей (по наружным стенам дома) в цвет кровли и водосточной системы пвх до уровня цоколя.
- Стропильная конструкция: из строганной доски 35х190мм., шаг 58-59см.
- Обрешетка: строганная доска 20х90мм, (подрешетник монтируется через контр рейку из строганного бруска 40х40мм).
- Окна: ПВХ, с двухкамерными стеклопакетами, размеры (ш/в): согласно проекту дома, (у двухстворчатых окон одна створка глухая-открывание правое, трехстворчатое окно открывание левая правая створка) белого цвета. С установкой белых пластиковых подоконников и металлических белых отлив. Монтаж окон производится без внутренних чистовых откосов.
- Двери: Входная металлическая без терморазрыва с утепленным полотном. Межкомнатные двери филенчатые (без фурнитуры).Эко-Шпон (без монтажа, без фурнитуры).
- Вентиляция: В кровле устанавливаются вентиляционные выходы в цвет кровли. Место установки определяется с Заказчиком на монтаже. Вентиляционные выходы монтируются без сборки шахт и последующего проведения внутри дома. Чердачное помещение со стороны фронтонов устанавливаются вентиляционные решетки, цвет белый.
- Подшивка: Подшивка фронтонных, карнизных свесов, лобовин, а также потолка террасы и крыльца «при их наличии», вагонкой штиль. Вынос карнизных и фронтонных свесов не менее 40-50 см.
- Электропроводка: Четыре точки на помещение (выключатель одноклавишный, розетка одинарная, патрон е 27, распаечная коробка). Силовая розеточная группа провод ВВгНг 3х2.5 прокладка в гофре 16д. Освещение провод ВВГнг 3х1.5 прокладка в гофре 16д (розетки и выключатели в стоимость не входят). Щит врезной-накладной в техническом помещении на 12 позиций. Автоматы ABB вводной трехполюсной 25амп. Автоматы 2 шт на свет 10амп поэтажно. Автомат на розетки 16амп не более 8 шт.
- Наружная инженерия: Кессон 960, гидробак 50 литров, реле давления, насос погружной, труба полипропилен. Скважина до 50м, труба ПНПВХ (непластифицированный поливинилхлорид) 125мм.Установка кессона производится до 5 метров от ввода в техническое помещение. Подвод трубы в траншее глубинной H-1.5м. осуществляется трубой ПНД 32мм. Из дома в трубу пнд заводиться греющей кабель длинной не менее 3-х метров.
- Отопление: Батареи панельные размеры по тепло-расчёту согласно кубатуре помещений. Трубы полипропилен белые монтаж открытым способом. Бак расширительный настенный. Коллекторная группа . Электро-котел отопления – Термика. Теплоноситель системы вода.
- Внешняя отделка: HAUBERK производитель ТЕХНОНИКОЛЬ. Наружные углы из строганной доски 20х140мм, внутренний угол (при наличии) деревянный плинтус.
- Ж/Б сваи 150х150х3000 мм.
- Гидроизоляция: рубероид 2 слоя.
- Обвязка: Три доски на ребро 35х190мм (антисептирована).
- Внешние стены каркас дома: из строганной доски 35х190 мм и дополнительным, по стенам монтируется вентиляционный зазор из строганного бруска 20х40мм. По вентиляционному зазору монтируется ОСБ-9мм.
- Паро-ветроизоляция стены: Изоспан А и Б. «Изоспан Б проклеивается армированным скотчем».
- Лаги: из строганной доска 35х190мм, шаг 58-59мм, (антисептированы)
- Внутренняя отделка стен, перегородок и потолков 2-х этажей: По стенам горизонтально монтируется имитация бруса 15х135 мм , потолок подшивается вагонкой штиль. В санузлах монтаж обрешётки из доски 20х90мм шагом 40 см. Отделка стен ГКЛВ-9мм в два слоя в шахматном порядке, потолок ГКЛВ-9мм в 1 слой.
- Полы черновые: обрезная доска 22х100мм с шагом 30мм.
- Кровля: Волнистый лист (металлочерепица), с установкой снегозадержателей (по наружным стенам дома) в цвет кровли и водосточной системы пвх до уровня цоколя.
- Стропильная конструкция: из строганной доски 35х190мм., шаг 58-59см.
- Обрешетка: строганная доска 20х90мм, (подрешетник монтируется через контр рейку из строганного бруска 40х40мм).
- Окна: ПВХ, с двухкамерными стеклопакетами, размеры (ш/в): согласно проекту дома, (у двухстворчатых окон одна створка глухая-открывание правое, трехстворчатое окно открывание левая правая створка) белого цвета. С установкой белых пластиковых подоконников и металлических белых отлив. Монтаж окон производится без внутренних чистовых откосов.
- Двери: Входная металлическая без терморазрыва с утепленным полотном. Межкомнатные двери филенчатые (без фурнитуры).Эко-Шпон (без монтажа, без фурнитуры).
- Вентиляция: В кровле устанавливаются вентиляционные выходы в цвет кровли. Место установки определяется с Заказчиком на монтаже. Вентиляционные выходы монтируются без сборки шахт и последующего проведения внутри дома. Чердачное помещение со стороны фронтонов устанавливаются вентиляционные решетки, цвет белый.
- Подшивка: Подшивка фронтонных, карнизных свесов, лобовин, а также потолка террасы и крыльца «при их наличии», вагонкой штиль. Вынос карнизных и фронтонных свесов не менее 40-50 см.
- Электропроводка: Четыре точки на помещение (выключатель одноклавишный, розетка одинарная, патрон е 27, распаечная коробка). Силовая розеточная группа провод ВВгНг 3х2.5 прокладка в гофре 16д. Освещение провод ВВГнг 3х1.5 прокладка в гофре 16д (розетки и выключатели в стоимость не входят). Щит врезной-накладной в техническом помещении на 12 позиций. Автоматы ABB вводной трехполюсной 25амп. Автоматы 2 шт на свет 10амп поэтажно. Автомат на розетки 16амп не более 8 шт.
- Наружная инженерия: Кессон 960, гидробак 50 литров, реле давления, насос погружной, труба полипропилен. Скважина до 50м, труба ПНПВХ (непластифицированный поливинилхлорид) 125мм.Установка кессона производится до 5 метров от ввода в техническое помещение. Подвод трубы в траншее глубинной H-1.5м. осуществляется трубой ПНД 32мм. Из дома в трубу пнд заводиться греющей кабель длинной не менее 3-х метров.
- Отопление: Батареи панельные размеры по тепло-расчёту согласно кубатуре помещений. Трубы полипропилен белые монтаж открытым способом. Бак расширительный настенный. Коллекторная группа . Электро-котел отопления – Термика. Теплоноситель системы вода.
- Внешняя отделка: HAUBERK производитель ТЕХНОНИКОЛЬ. Наружные углы из строганной доски 20х140мм, внутренний угол (при наличии) деревянный плинтус.
Что еще входит в стоимость:
Отправьте свои контакты и мы расчитаем вам смету
Скорее всего вам подойдут следующие проекты домов:
Проект двухэтажного дома Проект 1240 - финский каркасный дом с мансардным этажом
Для большой семьи
Дом подходит для:
Дом подходит для:
Проект двухэтажного дома Альпийский, под ключ, ламинат, Экошпон, Hauberk, коммуникации, сантехника, потолки 3м
Для большой семьи
Дом подходит для:
Дом подходит для:
Дом подходит для:














