Проект одноэтажного дома Флавия Г 1
Дом подходит для:
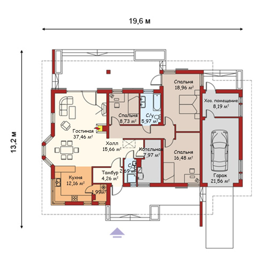
Площадь
200 м 2
Размер дома:
19,6х13,2
Этажей:
1
Спален:
3
Санузел:
2
Гараж:
Да
Баня:
Нет
Терраса:
Нет
Панорамные окна:
Нет
Мастер-спальня:
Нет
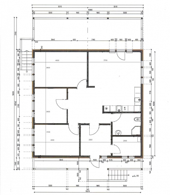
Планировка
Характеристики
- Общая площадь: 200 м2
- Жилая площадь: 146 м2
- Количество этажей: 1
- Гараж: 21,56
- Площадь кровли: 204 м2
- Отделка: Без отделки
- Фундамент: Дома с ленточным фундаментом
Материалы и перечень работ
- Ленточный монолитный
- Цокольное перекрытие железобетонные плиты
- Деревокаркас с утеплением 150мм
- Межэтажное перекрытие по деревянным балкам
- Металлическая черепица
- В стоимость не входит
- В стоимость не входит
- Штукатурка (мокрый фасад)
- Ленточный монолитный
- Цокольное перекрытие железобетонные плиты
- Деревокаркас с утеплением 150мм
- Межэтажное перекрытие по деревянным балкам
- Металлическая черепица
- В стоимость не входит
- В стоимость не входит
- Штукатурка (мокрый фасад)
Что еще входит в стоимость:
Отправьте свои контакты и мы расчитаем вам смету
Скорее всего вам подойдут следующие проекты домов:
Дом подходит для:
Дом подходит для:
Дом подходит для:










