Ваш город:

Проект одноэтажного дома Вилла Надежда

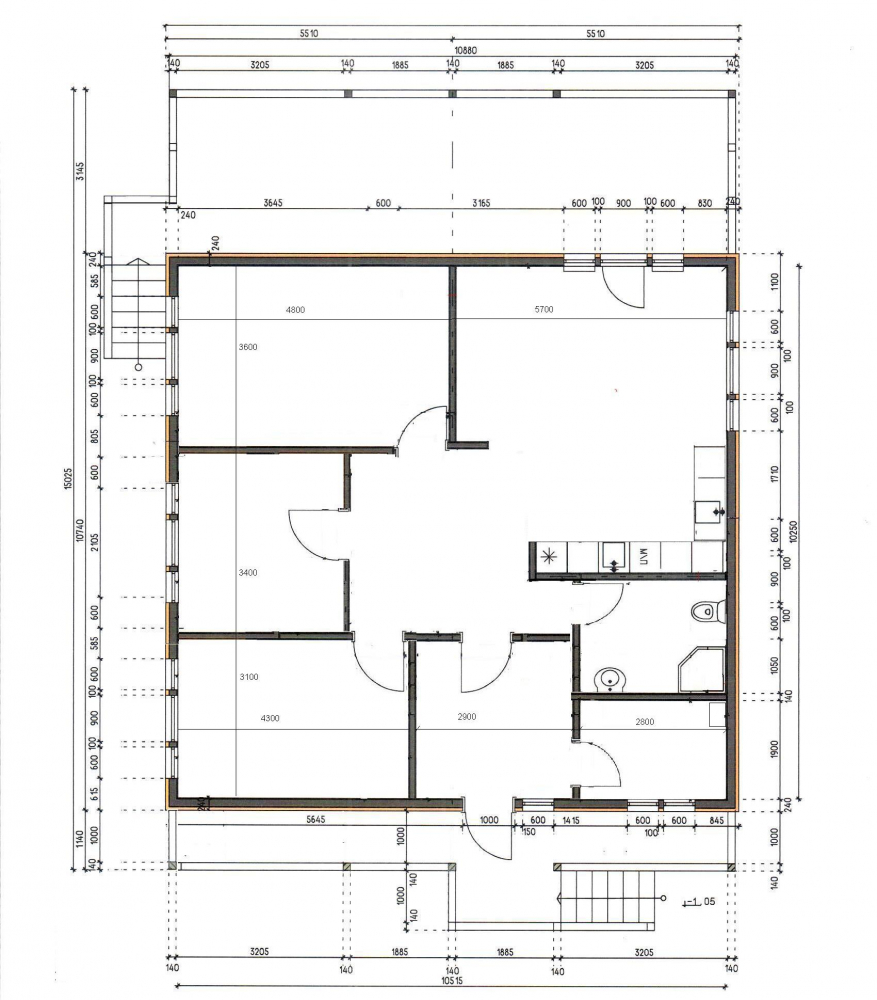
Площадь: 163 м2
Размер: 11x15
Дом подходит для:
Семья с двумя детьми
Этажей:
1
Стены:
Кровля:
Металлочерепица
Цена:
Оставить заявку
Площадь
163 м 2
Размер дома:
11x15
Этажей:
1
Спален:
3
Санузел:
0
Гараж:
Нет
Баня:
Нет
Терраса:
Нет
Панорамные окна:
Нет
Мастер-спальня:
Нет
О проекте
Пространство, в котором рождаются светлые планы. Дом объёмом 163 м² — пример грамотного проектирования. Материал кровли — металлочерепица, что добавляет зданию индивидуальность. Архитектура выполнена в стиле дома в стиле шале. Одноэтажная просторная планировка делает зонирование более логичным.

Характеристики
  • Общая площадь: 163 м2
  • Количество этажей: 1
  • Стиль, разновидность: Дома в стиле Шале
  • Форма: Широкие дома
  • Тип кровли: Дома с четырехскатной крышей (вальмовой)
  • Отделка: Без отделки
  • Размер: 11x15
Отправьте свои контакты и мы расчитаем вам смету
Прикрепить документ
Скорее всего вам подойдут следующие проекты домов:
Добавить к сравнению
Добавить в избранное
Изображение
Изображение
Изображение
Дом подходит для:
Семья с двумя детьми
Добавить к сравнению
Добавить в избранное
Изображение
Изображение
Изображение
Изображение
Изображение
Дом подходит для:
Семья с двумя детьми
Добавить к сравнению
Добавить в избранное
Изображение
Изображение
Изображение
Проект одноэтажного дома Карамзин
Площадь: 177 м2
Размер:
Дом подходит для:
Семья с одним ребенком
Дом подходит для:
Семья с одним ребенком