Проект двухэтажного дома Газовик
Дом подходит для:
Площадь
161 м 2
Размер дома:
10x10
Этажей:
2
Спален:
3
Санузел:
3
Гараж:
Нет
Баня:
Нет
Терраса:
Да
Панорамные окна:
Нет
Мастер-спальня:
Нет
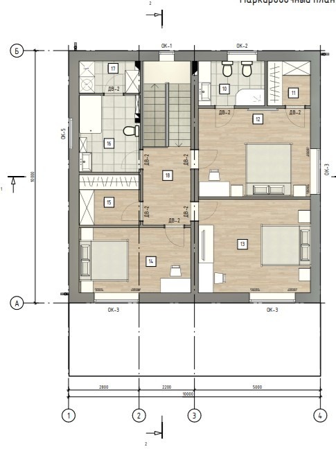
Планировка
Фасады
О проекте
Газовик — кирпичный дом площадью 161 м² с жилыми 120 м², где современный стиль сочетается с домашним теплом. Высокие потолки и панорамные окна наполняют пространство светом, а добротные стены обеспечивают тишину и тепло. Металлочерепица придает фасаду благородство, а продуманная отделка делает интерьер гармоничным. Это дом для тех, кто ценит надежность и комфорт.Характеристики
- Общая площадь: 161 м2
- Жилая площадь: 120 м2
- Количество этажей: 2
- Гараж: нет
- Площадь кровли: 184 м2
- Стиль, разновидность: Дома в стиле Минимализм
- Форма: Квадратные дома
- Тип кровли: Дома с многощипцовой крышей
- Пристрой: Дома с террасой
- Отделка: White box
- Отделка фасада: Дома с отделкой штукатуркой
- Фундамент: Дома с плитным фундаментом
- Класс дома: Дома класса Стандарт
Материалы и перечень работ
- Утепленная монолитная плита с усиленными ребрами жесткостями под несущие стены
- Разделяющий слой из геотекстиля (Такая прослойка станет надежным барьером и предотвратит смешивание песка и его заиливание);
- Песчаная подушка с послойным трамбованием;
- Теплоизоляция фундамента и грунта под зданием (ЭППС 50мм)
- Бетон В25 (М350) сертифицированный;
- Несущие стены толщиной 300 мм, благодаря высоким теплотехническим свойствам с учетом внешней отделки (кирпичная кладка/утепленные панели под кирпич) проходят норму теплосопротивляемости и не нуждаются в дополнительном утеплении.
- Изготовление ж/б армопояса соответствует требования СНиП, что позволяет выдерживать большие нагрузки и распределять их равномерно;
- Армопояс утеплен и исключает мостики холода.
- Перекрытия из железобетонных плит заводского изготовления. Расчетная прочность которых в 5 раз выше, чем деревянное перекрытия из бруса.
- Покрытие кровли - металлочерепица Grandline с полимерным покрытием Satin
- Стропильная система Брус естественной влажности, по ГОСТ. Размер сечения 50 х 200 мм.
- Гидро-ветрозащитная мембрана
- Многослойная паронепроницаемая армированная плёнка из полиэтилена. С алюминиевым рефлексным слоем, защищённым прозрачным полиэфирным покрытием.
- В стоимость не входит
- В стоимость не входит
- В стоимость не входит
- Утепленная монолитная плита с усиленными ребрами жесткостями под несущие стены
- Разделяющий слой из геотекстиля (Такая прослойка станет надежным барьером и предотвратит смешивание песка и его заиливание);
- Песчаная подушка с послойным трамбованием;
- Теплоизоляция фундамента и грунта под зданием (ЭППС 50мм)
- Бетон В25 (М350) сертифицированный;
- Несущие стены толщиной 300 мм, благодаря высоким теплотехническим свойствам с учетом внешней отделки (кирпичная кладка/утепленные панели под кирпич) проходят норму теплосопротивляемости и не нуждаются в дополнительном утеплении.
- Изготовление ж/б армопояса соответствует требования СНиП, что позволяет выдерживать большие нагрузки и распределять их равномерно;
- Армопояс утеплен и исключает мостики холода.
- Перекрытия из железобетонных плит заводского изготовления. Расчетная прочность которых в 5 раз выше, чем деревянное перекрытия из бруса.
- Покрытие кровли - металлочерепица Grandline с полимерным покрытием Satin
- Стропильная система Брус естественной влажности, по ГОСТ. Размер сечения 50 х 200 мм.
- Гидро-ветрозащитная мембрана
- Многослойная паронепроницаемая армированная плёнка из полиэтилена. С алюминиевым рефлексным слоем, защищённым прозрачным полиэфирным покрытием.
- В стоимость не входит
- В стоимость не входит
- В стоимость не входит
Что еще входит в стоимость:
Отправьте свои контакты и мы расчитаем вам смету
Скорее всего вам подойдут следующие проекты домов:
Дом подходит для:
Проект двухэтажного дома Исаково
Семья с одним ребенком
Дом подходит для:
Дом подходит для:
Проект двухэтажного дома Заречье
Семья с двумя детьми
Дом подходит для:
Дом подходит для:










