Проект двухэтажного дома Горный
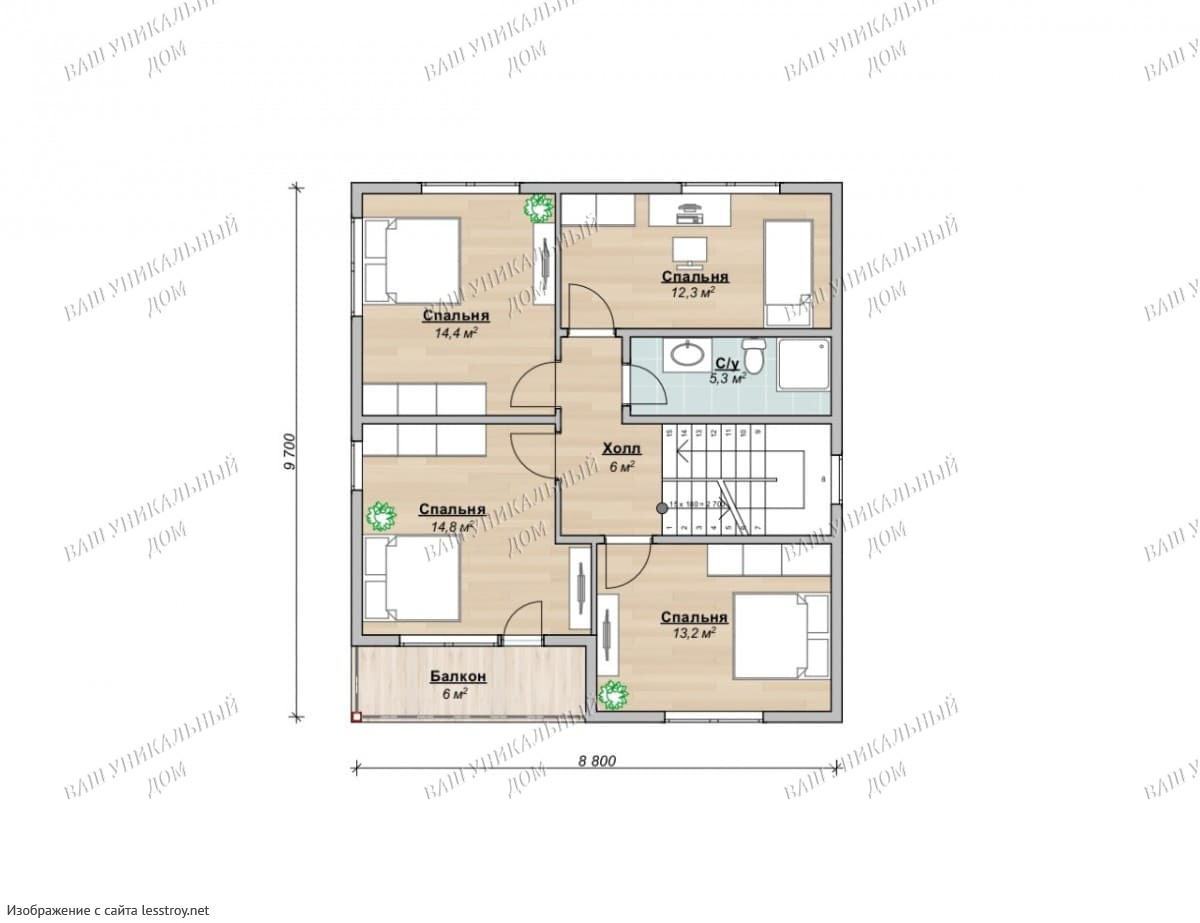
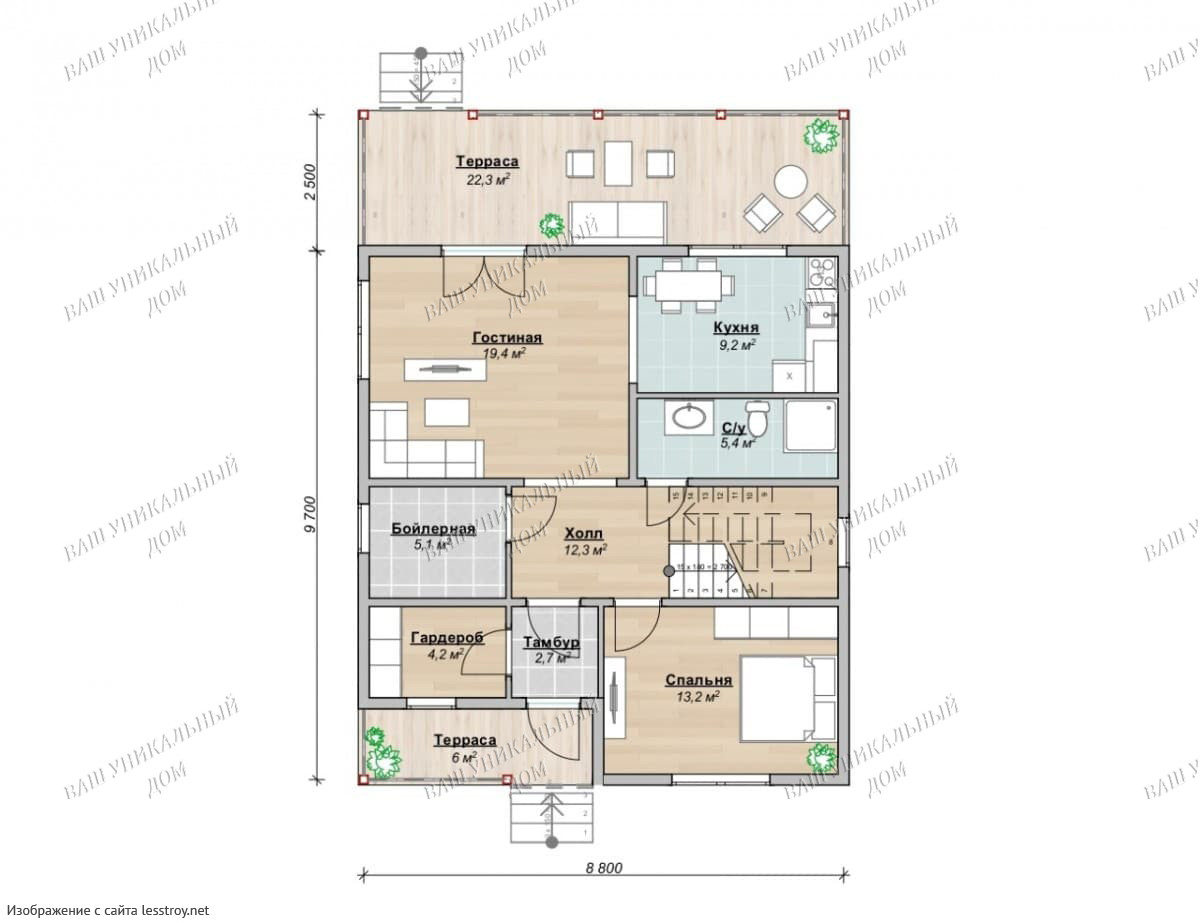
Площадь
166 м 2
Размер дома:
Этажей:
2
Спален:
4
Санузел:
0
Гараж:
Нет
Баня:
Нет
Терраса:
Нет
Панорамные окна:
Нет
Мастер-спальня:
Нет
О проекте
Дом, который выглядит дорого, но без показной роскоши. 166 м² — это идеальное сочетание функциональности и уюта. металлочерепица придаёт дому выразительность и надёжность. Проект включает 4 спальни — удобно для семьи. Архитектура выполнена в стиле дома в стиле фахверк.Характеристики
- Общая площадь: 165.8 м2
- Количество этажей: 2
- Стиль, разновидность: Дома в стиле Фахверк
- Форма: Прямоугольные дома
- Тип кровли: Дома с шатровой крышей
- Отделка: Без отделки
Отправьте свои контакты и мы расчитаем вам смету
Скорее всего вам подойдут следующие проекты домов:
Дом подходит для:
Дом подходит для:
Дом подходит для:














