Проект двухэтажного дома Гостья из будущего
Дом подходит для:
Площадь
187 м 2
Размер дома:
11x15
Этажей:
2
Спален:
4
Санузел:
3
Гараж:
Нет
Баня:
Нет
Терраса:
Нет
Панорамные окна:
Нет
Мастер-спальня:
Нет
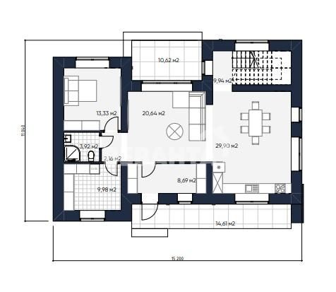
Планировка
Фасады
О проекте
Просторный дом площадью 187 м² с жилой зоной 153 м² идеально подходит для большой семьи. Керамические блоки обеспечивают натуральность и тепло, а светлые интерьеры наполнены воздухом. Продуманная планировка делает пространство функциональным и удобным. Здесь царит гармония между современным дизайном и домашним теплом.Характеристики
- Общая площадь: 187.18 м2
- Жилая площадь: 153 м2
- Количество этажей: 2
- Гараж: нет
- Площадь кровли: 187 м2
- Отделка: Без отделки
- Фундамент: Дома с плитным фундаментом
Материалы и перечень работ
- Выемка грунтов со слабой несущей способностью, в том числе плодородного слоя. Монтаж и бетонирование фундаментной плиты толщиной 300мм (Арматура 6 AI, Арматура 12 AIII, Бетон БСТ В22,5 (М300) F200 W8).
- Уплотнение основания, монтаж геотекстиля, отсыпка и послойное уплотнение песчаной подушки, монтаж плантера и экструдированного пенополистирола (утеплителя).
- Армирование фундамента (Арматура 6 AI, Арматура 12 AIII).
- Бетонирование фундамента (Бетон БСТ В22,5 (М300) F200 W8).
- Монтаж опалубки (доска обрезная 150х50).
- Внутренние несущие стены выполнены: из газобетонных блоков, пеноблоков, керамзитоблоков, керамических блоков, кирпича.
- Монолитный пояс, Арматура 6 AI, Арматура 12 AIII, Бетон БСТ В22,5 (М300) F200 W8).
- Бетонирование монолитных участков.
- Кладка перегородок.
- Монтаж перемычек над оконными и дверными проемами.
- Кровля – гибкая черепица «Технониколь», металлочерепица («Дельта», «Дёркен», «Вилпе» и др.), кликфальц (Grandline) или цементнопесчаная черепица (BRAAS). Цвет - в ассортименте.
- Контробрешетка. Обрешетка.
- Усиленная стропильная система из обрезной доски.
- В стоимость не входят
- Монтаж закладных гильз для ввода инженерных коммуникаций (вода, канализация, электричество).
- Монтаж вентиляционных каналов.
- Наружные несущие стены выполнены: из газобетонных блоков, пеноблоков, керамзитоблоков, керамических блоков(теплая керамика), кирпича.
- Выемка грунтов со слабой несущей способностью, в том числе плодородного слоя. Монтаж и бетонирование фундаментной плиты толщиной 300мм (Арматура 6 AI, Арматура 12 AIII, Бетон БСТ В22,5 (М300) F200 W8).
- Уплотнение основания, монтаж геотекстиля, отсыпка и послойное уплотнение песчаной подушки, монтаж плантера и экструдированного пенополистирола (утеплителя).
- Армирование фундамента (Арматура 6 AI, Арматура 12 AIII).
- Бетонирование фундамента (Бетон БСТ В22,5 (М300) F200 W8).
- Монтаж опалубки (доска обрезная 150х50).
- Внутренние несущие стены выполнены: из газобетонных блоков, пеноблоков, керамзитоблоков, керамических блоков, кирпича.
- Монолитный пояс, Арматура 6 AI, Арматура 12 AIII, Бетон БСТ В22,5 (М300) F200 W8).
- Бетонирование монолитных участков.
- Кладка перегородок.
- Монтаж перемычек над оконными и дверными проемами.
- Кровля – гибкая черепица «Технониколь», металлочерепица («Дельта», «Дёркен», «Вилпе» и др.), кликфальц (Grandline) или цементнопесчаная черепица (BRAAS). Цвет - в ассортименте.
- Контробрешетка. Обрешетка.
- Усиленная стропильная система из обрезной доски.
- В стоимость не входят
- Монтаж закладных гильз для ввода инженерных коммуникаций (вода, канализация, электричество).
- Монтаж вентиляционных каналов.
- Наружные несущие стены выполнены: из газобетонных блоков, пеноблоков, керамзитоблоков, керамических блоков(теплая керамика), кирпича.
Что еще входит в стоимость:
Отправьте свои контакты и мы расчитаем вам смету
Скорее всего вам подойдут следующие проекты домов:
Проект двухэтажного дома П298
Для большой семьи
Дом подходит для:
Дом подходит для:
Проект двухэтажного дома Орловъ
Для большой семьи
Дом подходит для:
Дом подходит для:






