Проект двухэтажного дома Грейс
Дом подходит для:
Площадь
157 м 2
Размер дома:
10x10
Этажей:
2
Спален:
2
Санузел:
2
Гараж:
Нет
Баня:
Нет
Терраса:
Нет
Панорамные окна:
Нет
Мастер-спальня:
Нет
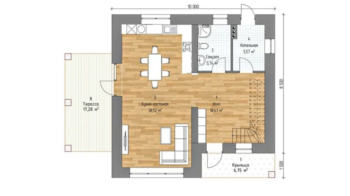
Планировка
Фасады
О проекте
Этот дом площадью 157 м² с жилыми 114 м² — воплощение современного комфорта и уюта. Газобетонные стены обеспечивают надежность и энергоэффективность, а просторные комнаты дарят ощущение свободы. Продуманная планировка делает пространство функциональным и удобным для жизни. Здесь царит атмосфера тепла и семейного счастья.Характеристики
- Общая площадь: 157 м2
- Жилая площадь: 114 м2
- Количество этажей: 2
- Гараж: нет
- Площадь кровли: 161 м2
- Отделка: Без отделки
- Размер: 10x10
- Фундамент: Дома со свайным фундаментом
Материалы и перечень работ
- Свайно ростверковый
- Наружные и внутренние несущие стены Газобетонный блок 375мм
- Перегородки газобетонный блок 100мм
- Перемычки сборные железобетонные
- Армопояс монолит
- Сборные железобетонные плиты перекрытия
- Сборные железобетонные плиты перекрытия По деревянным балкам с утеплением
- Конструкция крыши деревянная с обработкой огнебиозащитными составами
- Металлочерепица Гранд Лайн
- Двухкамерный стеклопакет. Профиль 70мм
- В стоимость не входит
- Наружная отделка фасадов керамический кирпич лицевой Производства «ВКЗ», «Терекс»
- Свайно ростверковый
- Наружные и внутренние несущие стены Газобетонный блок 375мм
- Перегородки газобетонный блок 100мм
- Перемычки сборные железобетонные
- Армопояс монолит
- Сборные железобетонные плиты перекрытия
- Сборные железобетонные плиты перекрытия По деревянным балкам с утеплением
- Конструкция крыши деревянная с обработкой огнебиозащитными составами
- Металлочерепица Гранд Лайн
- Двухкамерный стеклопакет. Профиль 70мм
- В стоимость не входит
- Наружная отделка фасадов керамический кирпич лицевой Производства «ВКЗ», «Терекс»
Что еще входит в стоимость:
Отправьте свои контакты и мы расчитаем вам смету
Скорее всего вам подойдут следующие проекты домов:
Проект двухэтажного дома Дабл
Семья с двумя детьми
Дом подходит для:
Дом подходит для:
Проект двухэтажного дома Дом id-113739
Для большой семьи
Дом подходит для:
Дом подходит для:
Проект двухэтажного дома Дом id-124152
Семья с двумя детьми
Дом подходит для:
Дом подходит для:





















