Проект одноэтажного дома Грининген 150
Дом подходит для:
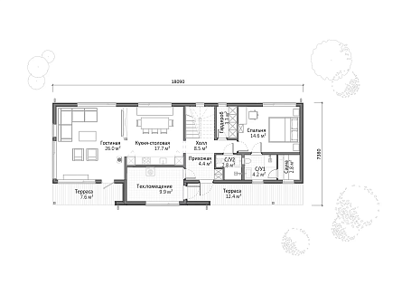
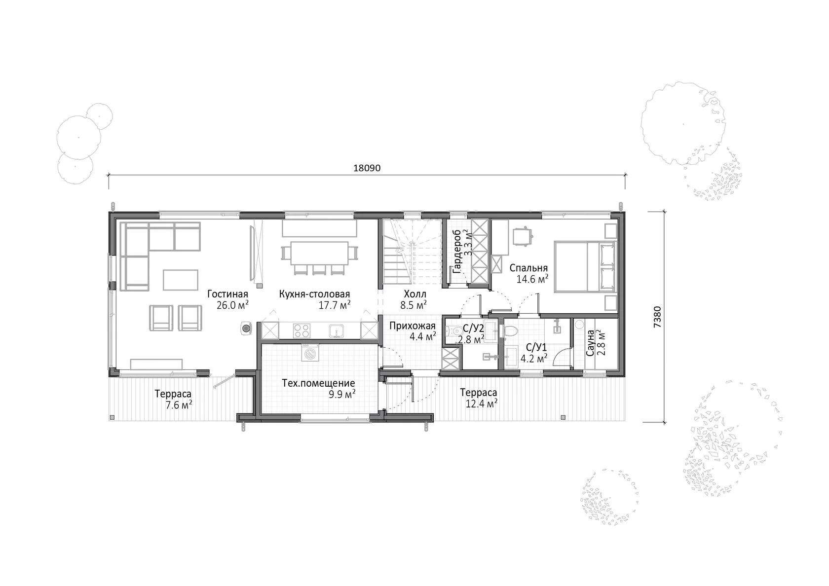
Площадь
150 м 2
Размер дома:
18,1 м x 7,4
Этажей:
1
Спален:
3
Санузел:
2
Гараж:
Нет
Баня:
Нет
Терраса:
Нет
Панорамные окна:
Нет
Мастер-спальня:
Нет
Планировка
Фасады
О проекте
Дом Грининген 150 площадью 150 м² с жилыми 119 м² создан для комфортной жизни. Каркасные стены обеспечивают тепло, а металлочерепица на крыше добавляет стиля. Три спальни и два санузла делают его удобным для семьи. Утеплённая шведская плита подчеркивает энергоэффективность этого проекта.Характеристики
- Общая площадь: 150 м2
- Жилая площадь: 119 м2
- Количество этажей: 1
- Гараж: нет
- Высота дома: 6 м
- Площадь кровли: 156 м2
- Отделка: Без отделки
- Фундамент: Дома с плитным фундаментом
Материалы и перечень работ
- Песчаное основание 300мм
- Закладные под коммуникации
- Тёплые водяные полы
- Трубы ХВС/ГВС и канализации
- Дренажная и ливневая канализации
- Стеновые панели с готовым фасадом и окнами
- Отдельные конструктивные элементы
- Кровельные панели LVL- брус
- Укладка кровельного покрытия
- Межэтажные панели LVL- брус
- Временные строительная лестница и дверь
- Не предусмотрена
- Комплект заводских панелей
- Крепёжные элементы
- Песчаное основание 300мм
- Закладные под коммуникации
- Тёплые водяные полы
- Трубы ХВС/ГВС и канализации
- Дренажная и ливневая канализации
- Стеновые панели с готовым фасадом и окнами
- Отдельные конструктивные элементы
- Кровельные панели LVL- брус
- Укладка кровельного покрытия
- Межэтажные панели LVL- брус
- Временные строительная лестница и дверь
- Не предусмотрена
- Комплект заводских панелей
- Крепёжные элементы
Что еще входит в стоимость:
Отправьте свои контакты и мы расчитаем вам смету
Скорее всего вам подойдут следующие проекты домов:
Дом подходит для:
Дом подходит для:
Дом подходит для:












